Agnietensteeg 10 en 12 te Zutphen:
Een unieke kans om wonen en werken te combineren in het stadscentrum van Zutphen.
Op de begane grond is een mooie winkelruimte met aangrenzend een pakhuis. De bekende winkel voor schilder- en tekenmateriaal ‘Schepping’ gaat stoppen. Daarmee komt een fantastische ruimte beschikbaar. De bestemming is ‘Centrum’. Dit betekent dat de begane grond ingevuld kan worden met ‘detailhandel of dienstverlenend bedrijf’. De winkel en het pakhuis hebben een oppervlakte van ca. 330 m2.
Op de verdieping is een karakteristieke en zeer goed onderhouden bovenwoning met groot dakterras. Deze goed onderhouden bovenwoning gelegen aan Agnietensteeg 10 biedt veel wooncomfort en privacy en dat middenin de binnenstad! De bovenwoning beschikt o.a. over een ruime woon/eetkamer met fijne lichtinval door de vele ramen, luxe half open keuken, vier (slaap)kamers, ruime badkamer, tweede toilet op de bovenste verdieping en een riant dakterras op het zuidoosten. Het woonoppervlak is 158 m² en de inhoud 559 m³.
De woning is gelegen aan een rustig zijstraatje van de welbekende Beukerstraat, de hoofdwinkelstraat van Zutphen. Door de ligging kan je dan ook optimaal genieten van het leven in de binnenstad, met een ruim aanbod aan detailhandel en gezellige horeca om de hoek! Ook is het centraal treinstation op loopafstand gelegen en ben je binnen enkele minuten aan de IJsselkade om heerlijk uit te waaien. Verder organiseert Zutphen veel jaarlijkse evenementen in de binnenstad, zoals de Zomerfeesten, de Nationale Bokbierdag en het Chocoladefestival!
Begane grond: entree met meterkast en trapopgang naar de woonverdieping.
1e Verdieping: entree, hal met toegang tot het trappenhuis, garderobe en toilet voorzien van wandcloset en fonteintje. Fraai afgewerkte en lichte woonkamer met oude balken in het zicht. Luxe half open keuken voorzien van inductiekookplaat met afzuigkap, stoomoven, combi-oven, koelkast, vriezer, vaatwasser, Quooker en composiet aanrechtblad. Ruime slaapkamer ter grootte van circa 19,5 m², voorzien van vaste kasten. Badkamer voorzien van inloopdouche, dubbel-wastafelmeubel en wasmachine- en drogeraansluiting. Vanuit de woonkamer is het maar liefst 45 m² ruime dakterras te bereiken, wat een heerlijk rustig buiten biedt middenin de stad!
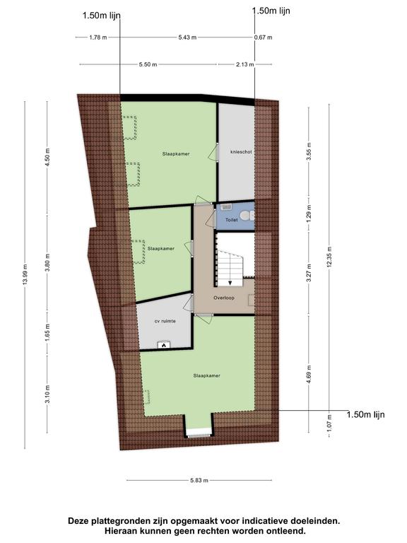
2e Verdieping: trappenhuis/overloop met zicht op de bijzondere (ronde)kapconstructie en toegang tot de berging met cv-opstelplaats. Drie slaapkamers ter grootte van circa 8,5 m², 15 m² en 16 m², goed afgewerkt en voorzien van dakvensters. De kamer aan de achterzijde heeft tevens toegang tot bergruimte achter de knieschotten ter grootte van circa 5,5 m².
LET OP!
De begane grond en het pakhuis zijn belast met 10,4% overdrachtsbelasting
De bovenwoning is ook te koop zonder winkel/pakhuis. De vraagprijs voor de bovenwoning met dakterras is € 450.000,- k.k.
