Sfeervolle goed onderhouden jaren ’30 hoekwoning met aangebouwde garage en oprit! Deze nette hoekwoning aan Baankstraat 31 c is gemoderniseerd, maar met behoud van authentieke details. De woning beschikt o.a. over een doorzonwoonkamer met erker aan de voorzijde en openslaande tuindeuren, dichte keuken, drie (slaap-)kamers, ruime badkamer, werkplek op de zolderkamer, provisiekelder en een nette achtertuin met ruime aangebouwde garage en oprit aan de voorzijde. Het woonoppervlak is 89 m², de inhoud 421 m³ en het perceel heeft een grootte van 222 m².
De woning is gelegen in Zutphense wijk “De Hoven”, een wijk ten opzichte van de Zutphense binnenstad aan de overzijde van rivier de IJssel met dorps karakter. Vanaf de woning ben je binnen enkele ogenblikken in het diverse buitengebied, of op de rondweg met goede ontsluiting richting de steden Apeldoorn, Deventer en Arnhem. Daarnaast ben je in een mum van tijd in het gezellige oude stadscentrum van Zutphen. Je hoeft slechts de brug over! Meer weten over De Hoven en haar omgeving? Informeer bij ons op kantoor!
Kelder: vanuit de hal te bereiken provisiekelder.
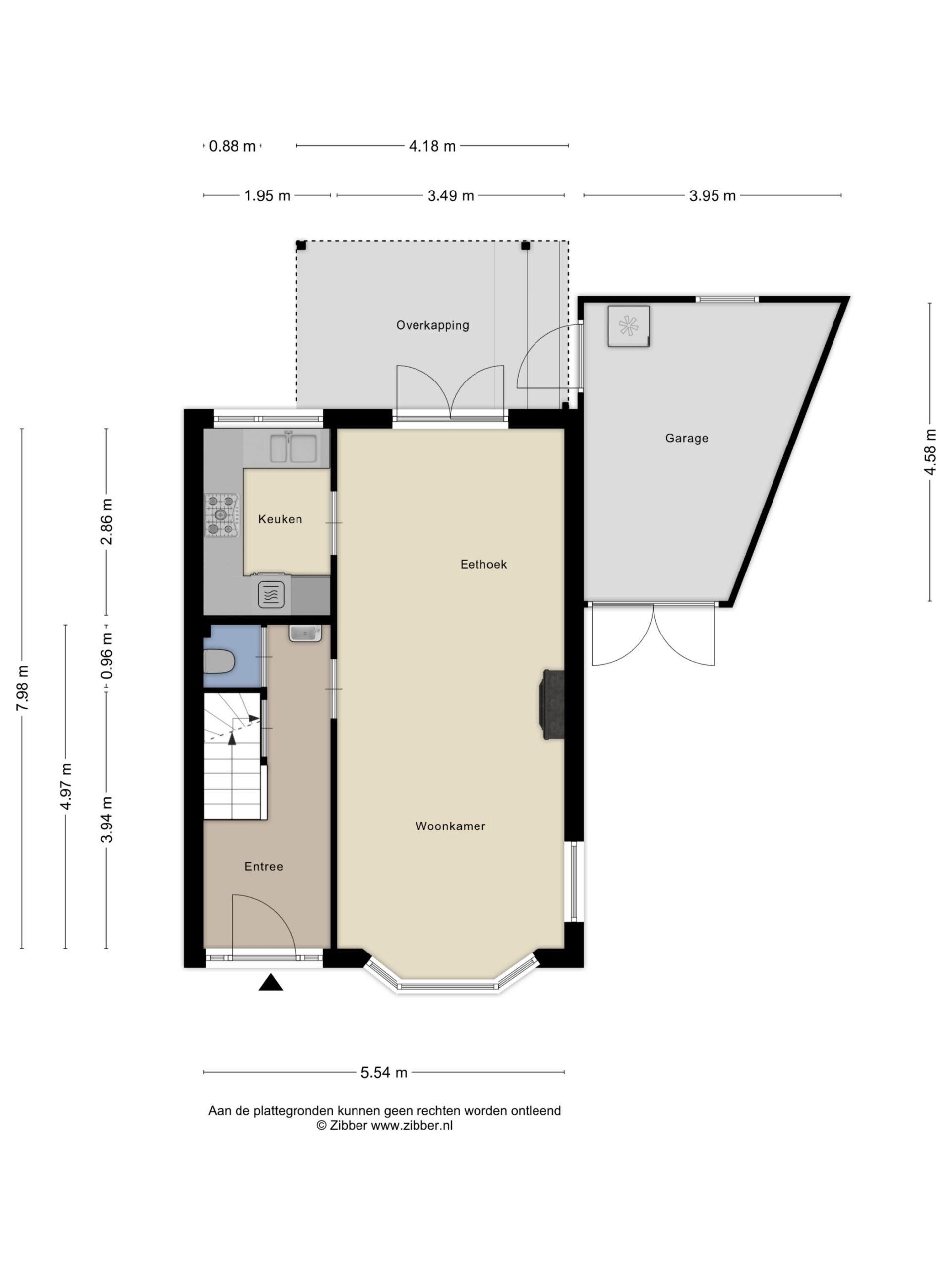
Begane grond: entree met glas-in-loodwerk, ruime hal met toegang tot de kelder, trapopgang naar de 1e verdieping, fonteintje en toilet voorzien van wandcloset. Keurig afgewerkte doorzonwoonkamer, met erker aan de voorzijde en openslaande deuren aan de achterzijde naar het terras. Dichte keuken voorzien van 5-pits gaskookplaat, afzuigkap, oven, koel-vriescombinatie en vaatwasser.
1e Verdieping: overloop. Drie (slaap)kamers ter grootte van circa 3,5 m², 10 m² en 13 m², allen keurig afgewerkt, waarvan de twee grootste slaapkamers zijn voorzien van vaste kasten. De ouder slaapkamer is tevens voorzien van airconditioning! Moderne badkamer met wastafelmeubel, inloopdouche, wandcloset en handdoekenradiator.
2e Verdieping: middels vaste trap te bereiken zolderkamer met dakraam, welke in gebruik is als werkkamer. Berging t.b.v. de cv-installatie.
Nette achtertuin op het zuidoosten, met overdekt terras tegen de achtergevel, sierbestrating, borders en ruime aangebouwde garage met oprit aan de voorzijde. De tuin is langs de garage achterom te bereiken.
Kortom: op zoek naar een woning met veel karakter in De Hoven? Kom snel kijken bij Baankstraat 31 c!
