Vrijstaande woning uit de jaren ’30 in één van de geliefdste straten van Warnsveld! Deze vrijstaande eengezinswoning aan Bonendaal 34 zit boordevol karakter en is o.a. voorzien van doorzonwoonkamer met open haard, erker en serre, dichte keuken, vier slaapkamers verdeeld over de 1e- en 2e verdieping, stijlvolle badkamer, 2e toilet, provisiekelder en een fraai aangelegde tuin rondom met achtertuin op het zuiden! Het woonoppervlak is 146 m², de inhoud 584 m³ en het perceel heeft een grootte van 307 m².
De woning is gelegen middenin het geliefde oude Warnsveld. De buurt kenmerkt zich door het vele groen, de ruime opzet en de verscheidenheid aan karakteristieke gebouwen. Daarnaast woon je op korte afstand van de dorpskern van Warnsveld, waar je terecht kunt voor de dagelijkse boodschappen. Ook is het oude centrum van Zutphen op circa 10 minuten fietsafstand gelegen, waar altijd wat te beleven is. Zo worden er meerdere terugkerende evenementen georganiseerd, zoals de nationale Bokbierdag, Het Chocoladefestival en Het Winterfestijn!
Kelder: vanuit de hal te bereiken provisiekelder.
Begane grond: entree met vestibule, hal voorzien van originele granitovloer, met toegang tot de kelder, meterkast, trapopgang naar de 1e verdieping en toilet met fonteintje. Stijlvolle doorzonwoonkamer met gezellige zitkamer aan de voorzijde met erker en open haard, eetkamer en serre met openslaande tuindeuren. Dichte keuken, tevens met tuindeur, voorzien van afzuigkap, koelkast, vriezer en vaatwasser.
1e Verdieping: overloop. Drie slaapkamers ter grootte van circa 5,5 m², 12,5 m² en 17 m², alle voorzien van vaste kasten. De grote slaapkamer beschikt over een schuifpui naar het platte dak aan de achterzijde. Stijlvolle badkamer met ruime inloopdouche, wastafelmeubel en wasmachine-aansluiting. Separaat modern 2e toilet met wandcloset en fonteintje.
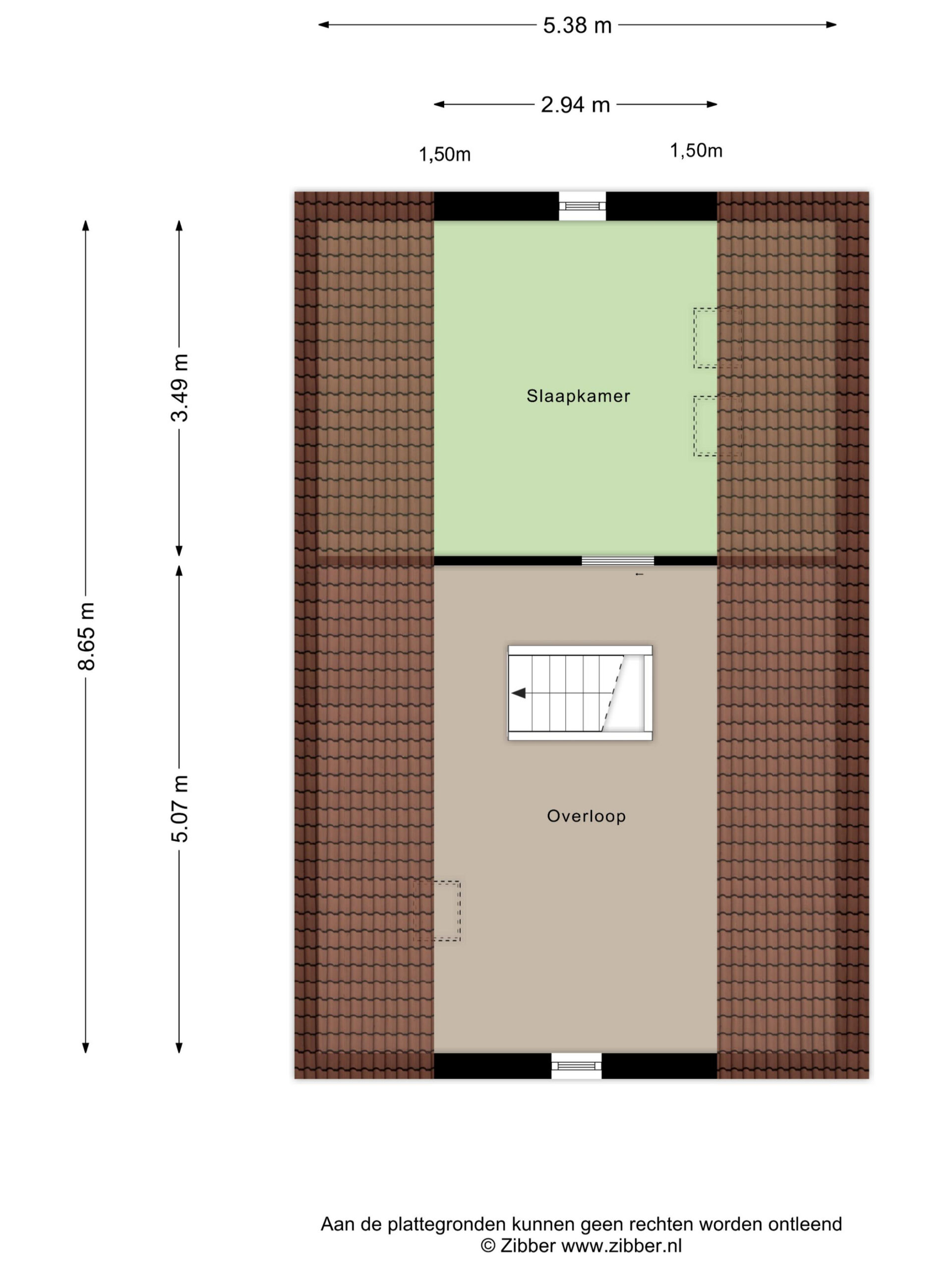
2e Verdieping: ruime overloop/voorzolder met dakraam. Net afgewerkte, vierde slaapkamer ter grootte van circa 10 m², voorzien van twee nieuwe dakramen.
De woning beschikt over een fraai aangelegde tuin rondom, met achtertuin op het zuiden, voorzien van terras bij de achtergevel, gazon, meerdere borders en houten overkapping aan de zijkant. Parkeren is mogelijk op de openbare parkeervoorzieningen in de straat.
Kortom: op zoek naar een jaren ’30 woning boordevol karakter op een mooie locatie in Warnsveld? Kom dan snel kijken bij Bonendaal 34!
