Half vrijstaand woonhuis met oprit en garage in de Zuidwijken van Zutphen. Deze nette 2-onder-1 kapwoning aan Braamkamp 546 is goed onderhouden en o.a. voorzien van tuingerichte woonkamer, half open keuken aan de voorzijde, aangebouwde werkkamer/berging, vier slaapkamers verdeeld over de 1e- en 2e verdieping, badkamer met 2e toilet, brede achtertuin op het westen met achterom en aan de voorzijde een aangebouwde garage en oprit voor één personenauto’s op eigen terrein. Het woonoppervlak is 126 m², de inhoud 488 m³ en het perceel heeft een grootte van 247 m².
De woning is gelegen in de Zuidwijken van Zutphen op loopafstand van wijkwinkelcentrum “De Brink”. Hierdoor zijn de dagelijkse boodschappen gemakkelijk in huis te halen. Ook zijn er meerdere scholen en sportverenigingen in de nabije omgeving te vinden en ben je binnen enkele minuten fietsen aan de oevers van rivier de IJssel. Verder staat Zutphen o.a. bekend om haar historische binnenstad waar altijd wat te beleven is! Meer weten over de Zuidwijken of Zutphen? Informeer bij ons op kantoor!
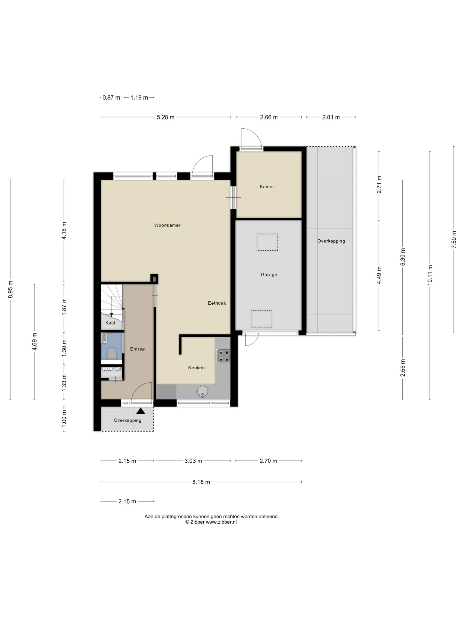
Begane grond: entree, hal met meterkast, trapkast, trapopgang naar de 1e verdieping en modern toilet voorzien van wandcloset en fonteintje. Tuingerichte, L-vormige woonkamer, voorzien van parketvloer en tuindeur. Half open keuken aan de voorzijde, voorzien van 4-pits gaskookplaat, afzuigkap, magnetron, oven, koelkast en vriezer. Aangebouwde werkkamer/berging met deur naar de achtertuin.
1e Verdieping: overloop. Drie slaapkamers ter grootte van circa 9 m², 11 m² en 16 m², waarvan twee voorzien van vloerbedekking. De kamer aan de voorzijde is voorzien van laminaatvloer en eigen wastafel. Badkamer met wastafel, wandcloset, douche en aansluiting voor de was-apparatuur.
2e Verdieping: overloop/voorzolder met bergruimte en cv-opstelplaats. Vierde slaapkamer ter grootte van circa 13 m², met bergruimte achter de knieschotten.
Nette, brede achtertuin op het westen, voorzien van terras aan de achtergevel met elektrisch zonnescherm, siertuin met pergola en overkapping langs de garage. De tuin is via de overkapping aan de zijkant achterom te bereiken. Aan de voorzijde is een oprit met parkeerruimte voor één personenauto aanwezig voor de garage.
Kortom: nette eengezinswoning met veel ruime tuin, op korte afstand van de dagelijkse voorzieningen in de Zuidwijken van Zutphen!
