Riant vrijstaand woonhuis op groene locatie in de Zuidwijken van Zutphen. Deze royale vrijstaande eengezinswoning aan Braamkamp 553 biedt verrassend veel leefruimte in- en om het huis en is van alle gemakken voorzien. Zo beschikt de woning o.a. over een ruime woonkamer met ruime zithoek voorzien van houtkachel en eethoek met schuifpui naar de achtertuin, luxe half open keuken, vier (slaap)kamers op de 1e verdieping, moderne badkamer en separaat 2e toilet, op de 2e verdieping is een multi inzetbare ruimte voorzien van een sauna en entresol. Riante tuin rondom met veel groen en privacy, houten geïsoleerde berging, ruime carport en oprit! Ook zijn er 20 zonnepanelen aanwezig en is de woning voorzien van hete lucht verwarming. Het woonoppervlak is 207 m², de inhoud 798 m³ en het perceel heeft een grootte van 906 m².
De woning is gelegen aan de groene buitenrand van de Zuidwijken van Zutphen. De wijk is ruim opgezet, beschikt over haar eigen winkelcentrum en er zijn meerdere scholen in de nabije omgeving, wat het de ideale locatie maakt voor een (groot)gezin. Daarnaast ben je binnen enkele ogenblikken aan de oevers van rivier de IJssel om even lekker uit te waaien! Het oude stadscentrum van Zutphen is gelegen op circa 10 minuten fietsafstand, waar alle denkbare voorzieningen aanwezig zijn. Meer weten over Zutphen en haar omgeving? Informeer bij ons op kantoor!
Kelder: vanuit de keuken te bereiken provisiekelder.
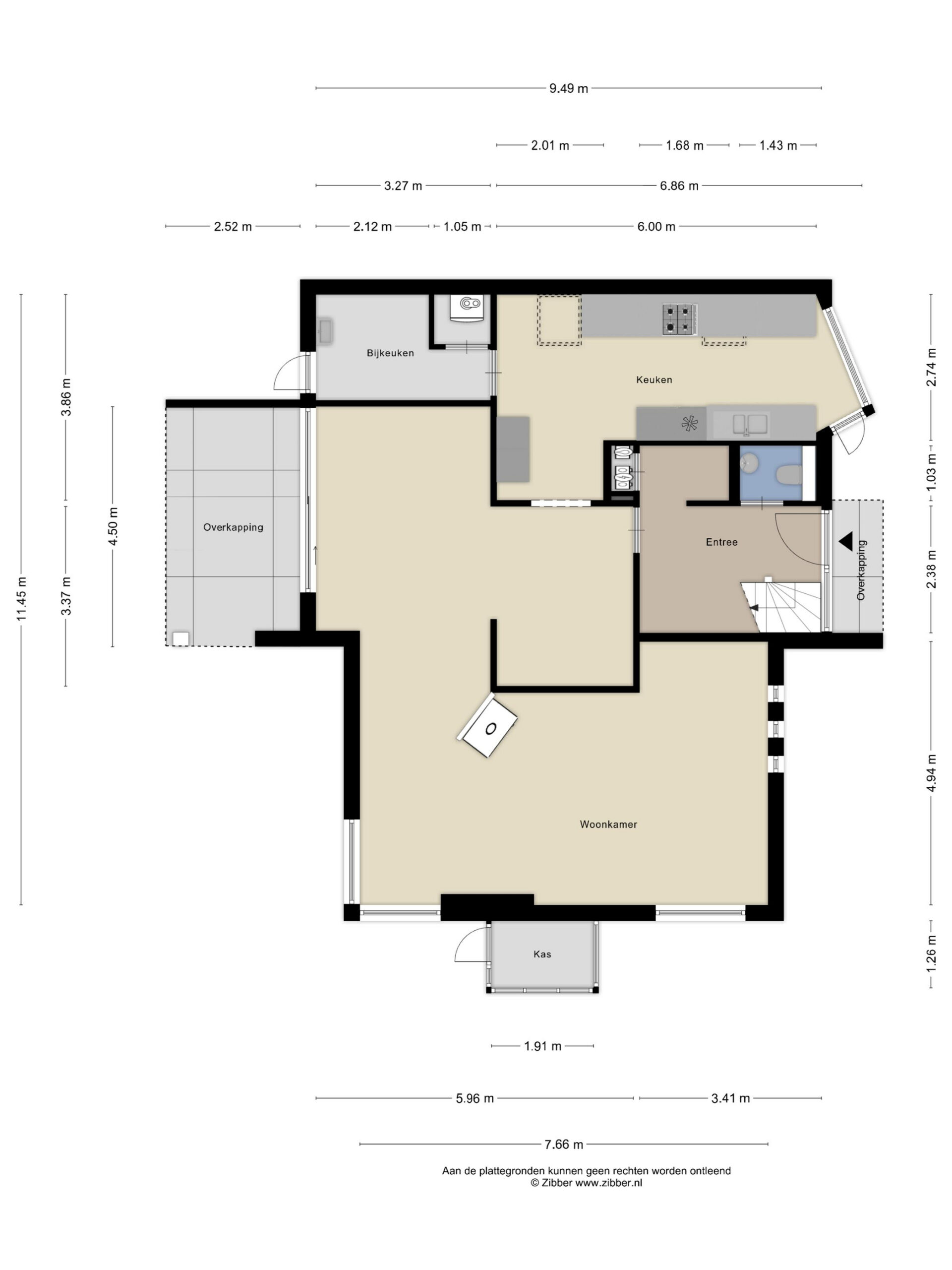
Begane grond: entree, hal met garderobe, trapopgang naar de 1e verdieping en toilet voorzien van wandcloset en fonteintje. Riante woonkamer bestaande uit een ruime zithoek met houkachel, eetkamer bij de achtertuin voorzien van schuifpui en werk/studeerhoek. Half open keuken voorzien van 5-pits gaskookplaat met afzuigkap, close-in boiler, vaatwasser, koelkast, vriezer, oven en stoomoven.
1e Verdieping: ruime overloop met tweede toilet en wasruimte voorzien van dakraam. Vier slaapkamers waarvan drie circa 12 m² en één circa 13,5 m². Twee van deze kamers zijn voorzien van een eigen wastafel. Moderne badkamer met dakraam, voorzien van dubbel-wastafelmeubel en inloopdouche.
2e Verdieping: riante (slaap)kamer ter grootte van circa 24 m², met dakraam, sauna en toegang tot de (berg)vliering.
De woning beschikt over een riante, privacy volle tuin rondom met veel groen, vijver, meerdere terrassen, een houten geïsoleerde berging (inclusief grondwaterpomp), carport voorzien van elektrische laadpaal en een ruime oprit.
Kortom: op zoek naar een woning met veel privacy, groen en ruimte? Kom snel kijken bij Braamkamp 553 te Zutphen!
