Royale vrijstaande woning met slaap- en badkamer op de begane grond! Deze met de garage geschakelde villa aan De Lange Garde 27 biedt verrassend veel ruimte in- en rondom het huis en is o.a. voorzien van een ruime lichte woonkamer met veel ramen, woonkeuken met openslaande deuren naar de riante veranda, bijkeuken met toegang tot de aangebouwde garage, één slaap- en badkamer op de begane grond, drie ruime slaapkamers en badkamer op de 1e verdieping, een multifunctionele zolderruimte en riante tuin rondom met oprit voor twee personenauto’s aan de voorzijde. Daarnaast is de woning volledig geïsoleerd, voorzien van 14 zonnepanelen, hybride warmtepomp en beschikt het over energielabel A++! Het woonoppervlak is 219 m², de inhoud 870 m³ en het perceel heeft een grootte van maar liefst 573 m²!
De woning is gelegen in een rustige, ruim opgezette (nieuwbouw-)wijk in het dorp Warnsveld. De wijk grenst aan de Zutphense wijk Leesten, welke beschikt over een winkelcentrum, wat gelegen is op fietsafstand. Daarnaast kan je gemakkelijk terecht bij de dorpskern van Warnsveld waar ook alle winkels voor de dagelijkse behoefte aanwezig zijn. Verder staat Warnsveld bekend om de bosrijke omgeving met talloze wandel- en fietsroutes door het coulisselandschap van de achterhoek! Meer weten over Warnsveld en haar omgeving? Informeer bij ons op kantoor!
Begane grond: entree met meterkast. Ruime hal met trapopgang naar de 1e verdieping en (gasten-)toilet voorzien van wandcloset en fonteintje. Riante woonkamer met veel ramen, voorzien van elektrische screens en en-suite deuren naar de woonkeuken. Woonkeuken met eethoek met openslaande deuren naar de veranda in de achtertuin en keuken in L-opstelling, voorzien van inductiekookplaat, afzuigkap, combi-oven, koelkast en vaatwasser. Bijkeuken met cv-opstelplaats, gootsteen, aansluiting voor de wasapparatuur en deur naar de aangebouwde garage ter grootte van circa 26,5 m², welke beschikt over een deur naar de achtertuin. Slaapkamer ter grootte van circa 15 m², met ruime badkamer-en-suite voorzien van ligbad, wastafel, inloopdouche en wandcloset.
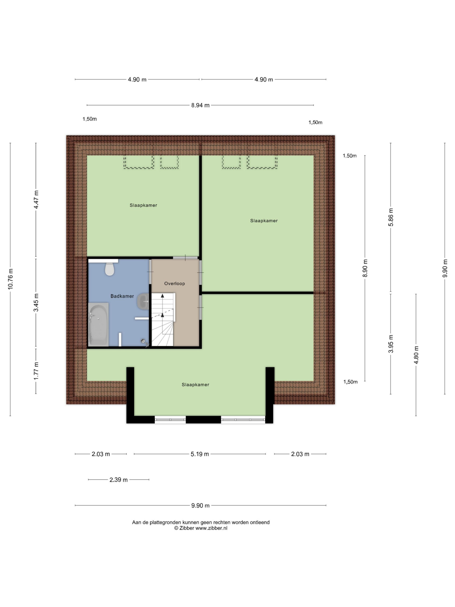
1e Verdieping: overloop. Drie riante slaapkamers ter grootte van circa 17,5 m², 23,5 m² en 27,5 m². De slaapkamers aan de achterzijde beschikken over dakramen. Ruime tweede badkamer tevens met ligbad, inloopdouche, wandcloset en wastafel.
2e Verdieping: ruime multifunctionele zolderkamer ter grootte van circa 22,5 m².
De woning biedt een fraai aangelegde, vrij gelegen achtertuin op het zuidoosten met riante (overdekte)veranda tegen de achtergevel, veel gazon, meerdere borders en pergola. Aan de voorzijde is een oprit aanwezig met parkeerruimte voor twee personenauto’s op eigen terrein.
Kortom: riante, levensloopbestendige- en energiezuinige woning op rustige locatie in het dorp Warnsveld!
