Jaren ’30 tussenwoning boordevol karakter op steenworp afstand van de Zutphense binnenstad! Deze nette eengezinswoning aan Emmerikseweg 2c zit boordevol potentie. Op dit moment beschikt de woning over een doorzonwoonkamer met erker aan de voorzijde voorzien van glas-in-loodwerk, dichte keuken, drie ruime slaapkamers verdeeld over de 1e- en 2e verdieping, badkamer met 2e toilet, aparte kast voor de wasapparatuur, (berg)vliering en een fraai aangelegde achtertuin op het westen met stenen schuur en achterom. Het woonoppervlak is 121 m², de inhoud 441 m³ en het perceel heeft een grootte van 150 m².
De woning is gelegen net buiten de centrumring van Zutphen. Daarnaast woon je op loopafstand van meerdere supermarkten o.a. bij wijkwinkelcentrum Waterkwartier, waardoor de dagelijkse boodschappen gemakkelijk in huis te halen zijn. Het gezellige centrum biedt o.a. een ruim aanbod aan horeca, detailhandel, een theater, bioscoop en treinstation. Ook raak je hier nooit uitgekeken door de vele historische gebouwen, groene hofjes en de stadsmuren wat Zutphen zo bijzonder en uniek maakt!
Begane grond: entree, hal voorzien van granitovloer, trapopgang naar de 1e verdieping, trapkast met meterkast en toilet. Lange doorzonwoonkamer met erker voorzien van glas-in-lood-werk aan de voorzijde bij de zithoek, schouw met gaskachel en eetkamer aan de achterzijde. Dichte keuken met 4-pits gaskookplaat, afzuigkap, combi-oven, koel-/vriescombinatie, vaatwasser en deur naar de achtertuin.
1e Verdieping: overloop met vaste kast t.b.v. de wasapparatuur. Twee ruime slaapkamers ter grootte van 12 m² en 14,5 m², beiden voorzien van vaste kast(en). Nette badkamer voorzien van inloopdouche, wastafelmeubel, wandcloset en handdoekenradiator.
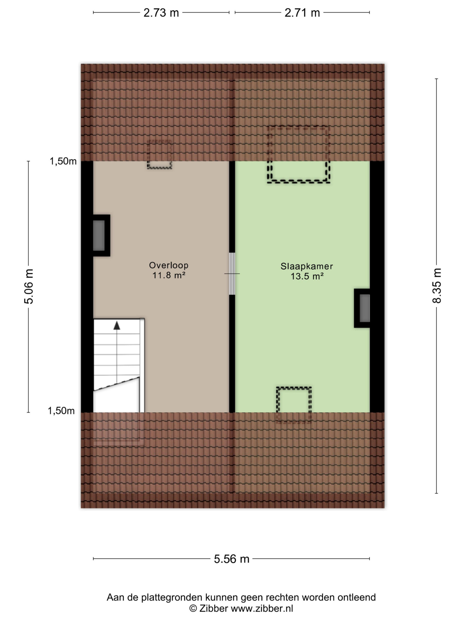
2e Verdieping: ruime overloop met dakraam en toegang tot de vliering. Slaapkamer ter grootte van circa 13,5 m², voorzien van dakramen.
Nette achtertuin op het westen, met terras voorzien van elektrisch zonnescherm tegen de achtergevel, meerdere borders, stenen vrijstaande schuur en achterom. Parkeren is mogelijk in de straat op de openbare parkeervoorzieningen.
Kortom: tussenwoning met karakter uit de jaren ’30, op korte afstand van de Zutphense binnenstad en de dagelijkse voorzieningen!
