Levensloopbestendige Semibungalow in rustige buurt nabij het Warnsveldse bos! Deze vrijstaande semibungalow aan Garsenshof 21 verdient het gemoderniseerd te worden, maar zit boordevol mogelijkheden. Op dit moment beschikt het over een woonkamer met tuindeur, dichte keuken, één slaapkamer, compacte badkamer en separaat (gasten) toilet op de begane grond, twee slaapkamers en een ruimere badkamer op de 1e verdieping, bijkeuken met toegang tot de aangebouwde garage en een riante tuin rondom met veel groen, sierbestrating, zitjes en ruimte naast de garage voor een caravan of camper. tevens is er parkeerruimte voor twee personenauto’s op eigen terrein. Het woonoppervlak is 106 m², de inhoud 461 m³ en het perceel heeft een grootte van 475 m²!
De woning is gelegen in een ruim opgezette buurt in het rustige dorpje Warnsveld. Vanaf de woning ben je binnen enkele ogenblikken bij het bos voor een heerlijke wandeling in de natuur. Voor de dagelijkse boodschappen kun je gemakkelijk terecht bij winkelcentrum de “Dreiumme”. Voor andere faciliteiten is ook het stadscentrum van Zutphen niet ver weg gelegen, waardoor je kan genieten van de rust van het dorp, maar de gemakken en reuring van de stad!
Begane grond: entree, ruime hal met trapopgang naar de 1e verdieping, meterkast en (gasten) toilet met fonteintje. Woonkamer met zithoek voorzien van gashaard en tuindeur bij de eethoek. Dichte keuken voorzien van oven, 5-pits gaskookplaat, afzuigkap en koel-/vriescombinatie. Slaapkamer ter grootte van circa 11 m², voorzien van vaste kast. Compacte badkamer met wastafelmeubel en douche. Bijkeuken met pantry, wasmachine-aansluiting, verwarmingsopstelling, vaste kast en toegang tot de aangebouwde garage (van circa 16 m²).
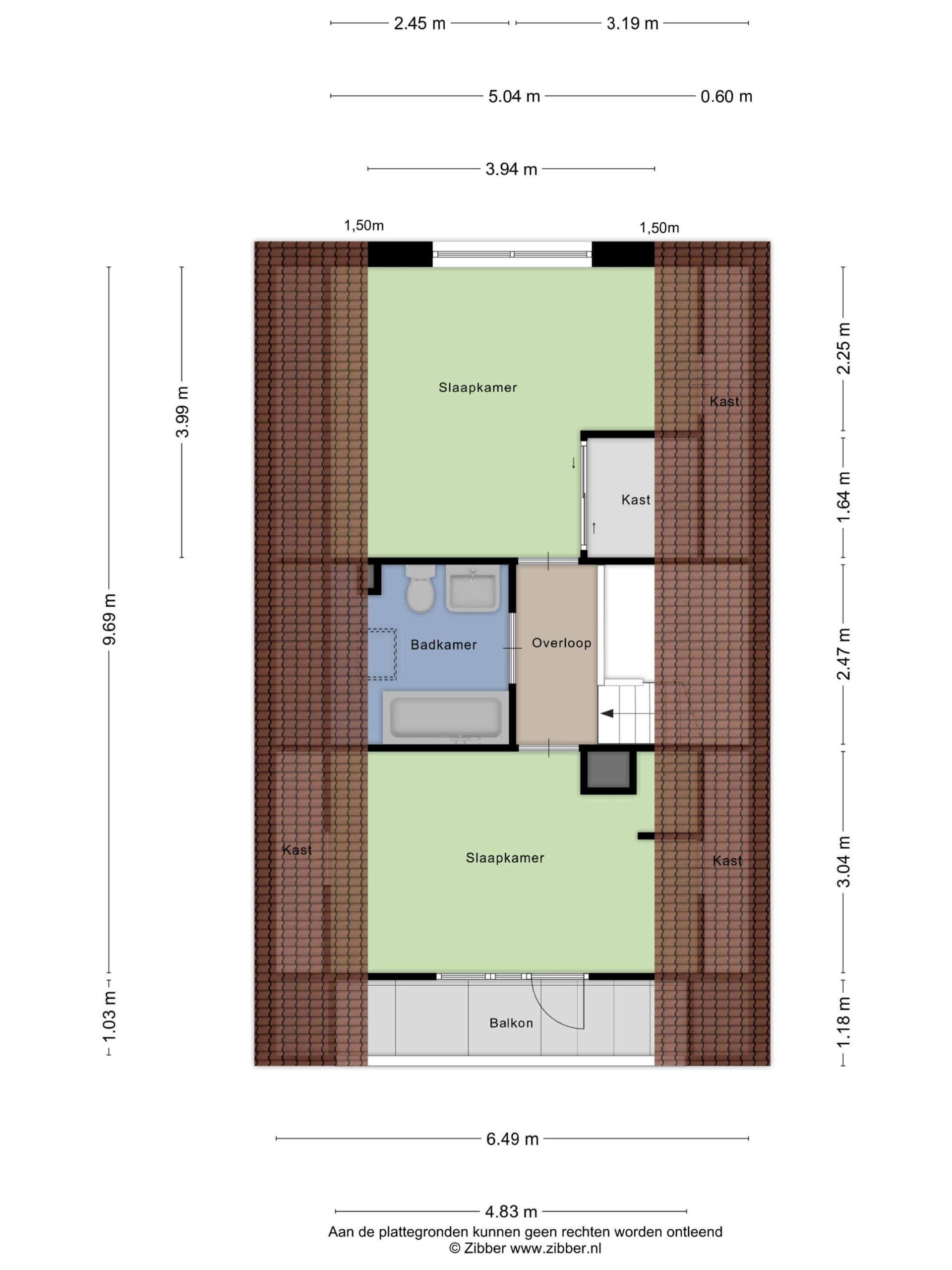
1e Verdieping: overloop. Twee slaapkamers ter grootte van circa 12 m² en 14 m², waarvan één voorzien van vaste kast en een met toegang tot hat balkon aan de zuidzijde. Tweede (ruimere) badkamer voorzien van dakraam met ligbad, douche, wastafelmeubel en toilet.
De woning biedt een riante tuin rondom met fraai aangelegde borders, sierbestrating, zitjes en een oprit voor de garage met parkeerruimte voor twee personenauto’s op eigen terrein.
Kortom: op zoek naar een levensloopbestendige woning met fijne tuin rondom? Kom snel kijken bij Garsenshof 21 in het rustige dorpje Warnsveld!
