Jaren ’30 tussenwoning in sfeervolle buurt, boordevol karakter! Deze goed onderhouden eengezinswoning aan Heeckerenlaan 33 te Zutphen, biedt verrassend veel (woon-)ruimte en beschikt o.a. over een woonkamer-en-suite met zitkamer aan de voorzijde met erker en eetkamer aan de achterzijde met openslaande tuindeuren, moderne half open keuken, tevens met tuindeur, maar liefst 6 (slaap-)kamers verdeeld over de 1e- en 2e verdieping, luxe badkamer, riant balkon aan de achterzijde, souterrain, (berg)vliering en nette achtertuin met terras tegen de achtergevel, houten berging en achterom. Het woonoppervlak is 141 m², de inhoud 697 m³ en het perceel heeft een grootte van 179 m².
De woning is gelegen aan een van de meest gewilde recent geheel opnieuw ingerichte laan van Zutphen, op korte afstand van de binnenstad. In de nabije omgeving zijn meerdere scholen te vinden, (sport-)verenigingen en er is een buurtsupermarkt op loopafstand, wat het de ideale locatie maakt voor het gezinsleven. Voor alle andere voorzieningen kan je terecht in het oude centrum van Zutphen, wat vooral bekend staat om haar charme met prachtige panden uit de Hanze tijd! Meer weten over Zutphen en haar omgeving? Informeer bij ons op kantoor!
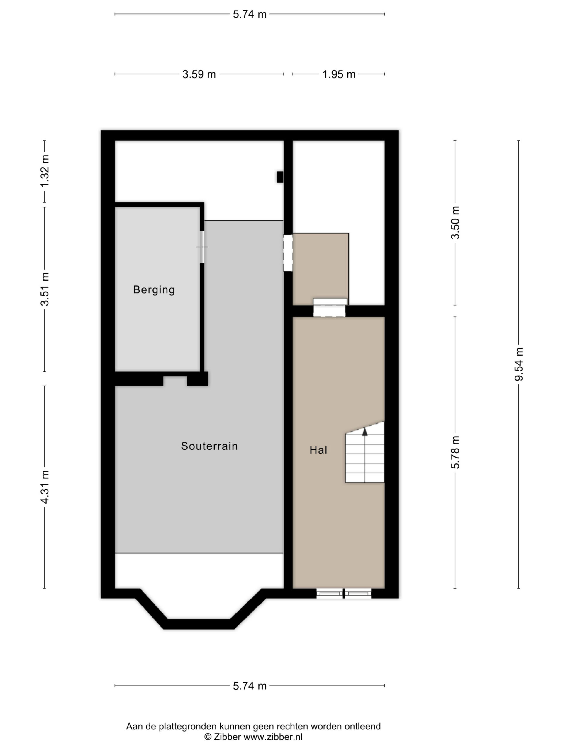
Souterrain: vanuit de hal te bereiken souterrain. Op dit moment in gebruik als berg-/provisieruimte.
Begane grond: authentieke entree met glas-in-loodwerk. Hal voorzien van granitovloer, met trapopgang naar de 1e verdieping, meterkast en toilet voorzien van wandcloset en fonteintje. Fraai afgewerkte woonkamer-en-suite, met zitkamer voorzien van erker aan de voorzijde en eetkamer met openslaande tuindeuren aan de achterzijde. Moderne half open keuken met tuindeur, voorzien van inductiekookplaat met geïntegreerde afzuiging, combi-oven, koelkast, vriezer en vaatwasser.
1e Verdieping: overloop met vaste kast. Drie slaapkamers ter grootte van circa 6 m², 13 m² en 15,5 m², allen keurig afgewerkt en voorzien van houten vloeren. De grote slaapkamer aan de achterzijde beschikt tevens over een riante kastenwand en biedt toegang tot het ruime balkon (9 m²) aan de achterzijde middels openslaande deuren. Luxe badkamer voorzien van chique wastafelmeubel, wandcloset en ruime inloopdouche.
2e Verdieping: ruime overloop/voorzolder met cv-opstelplaats en aansluiting voor de wasapparatuur. Drie (slaap-)kamers ter grootte van circa 6,5 m², 7 m² en 10 m², waarvan twee voorzien van vaste kast.
Fraai aangelegde achtertuin met bestraat terras tegen de achtergevel voorzien van elektrisch zonnescherm, gazon, houten berging met overkapping en achterom. Parkeren is mogelijk in de straat op de openbare parkeervoorzieningen.
Kortom: unieke jaren ’30 tussenwoning in goede staat, op korte afstand van de Zutphense binnenstad!
