Instapklare 2-onder-1 kapwoning op fijne locatie in Leesten Oost! Deze tot in de puntjes afgewerkte eengezinswoning aan Hemmingstraat 3 te Zutphen is helemaal bij de tijd en o.a. voorzien van een riante tuingerichte woonkamer, woonkeuken met kookeiland, drie slaapkamers op de 1e verdieping, luxe badkamer, riante open ruimte op de 2e verdieping (waar ook meer kamers gecreëerd kunnen worden), een nette achtertuin met achterom en riante aangebouwde garage met oprit voor één personenauto op eigen terrein. Daarnaast is de woning volledig geïsoleerd en voorzien van 10 zonnepanelen! Het woonoppervlak is 175 m², de inhoud 698 m³ en het perceel heeft een grootte van 227 m².
De woning is gelegen in één van de nieuwste wijken van Zutphen, Leesten Oost. De wijk is kindvriendelijk, ruim opgezet en het wijkwinkelcentrum van leesten is gelegen op loopafstand. Hierdoor zijn de dagelijkse boodschappen gemakkelijk in huis te halen. Ook ben je binnen enkele ogenblikken op de rondweg te vinden, waardoor omliggende steden als Apeldoorn, Deventer en Arnhem gemakkelijk te bereiken zijn. Verder staat Zutphen o.a. bekend om haar diverse buitengebied en haar historische stadscentrum waar altijd wat te beleven is!
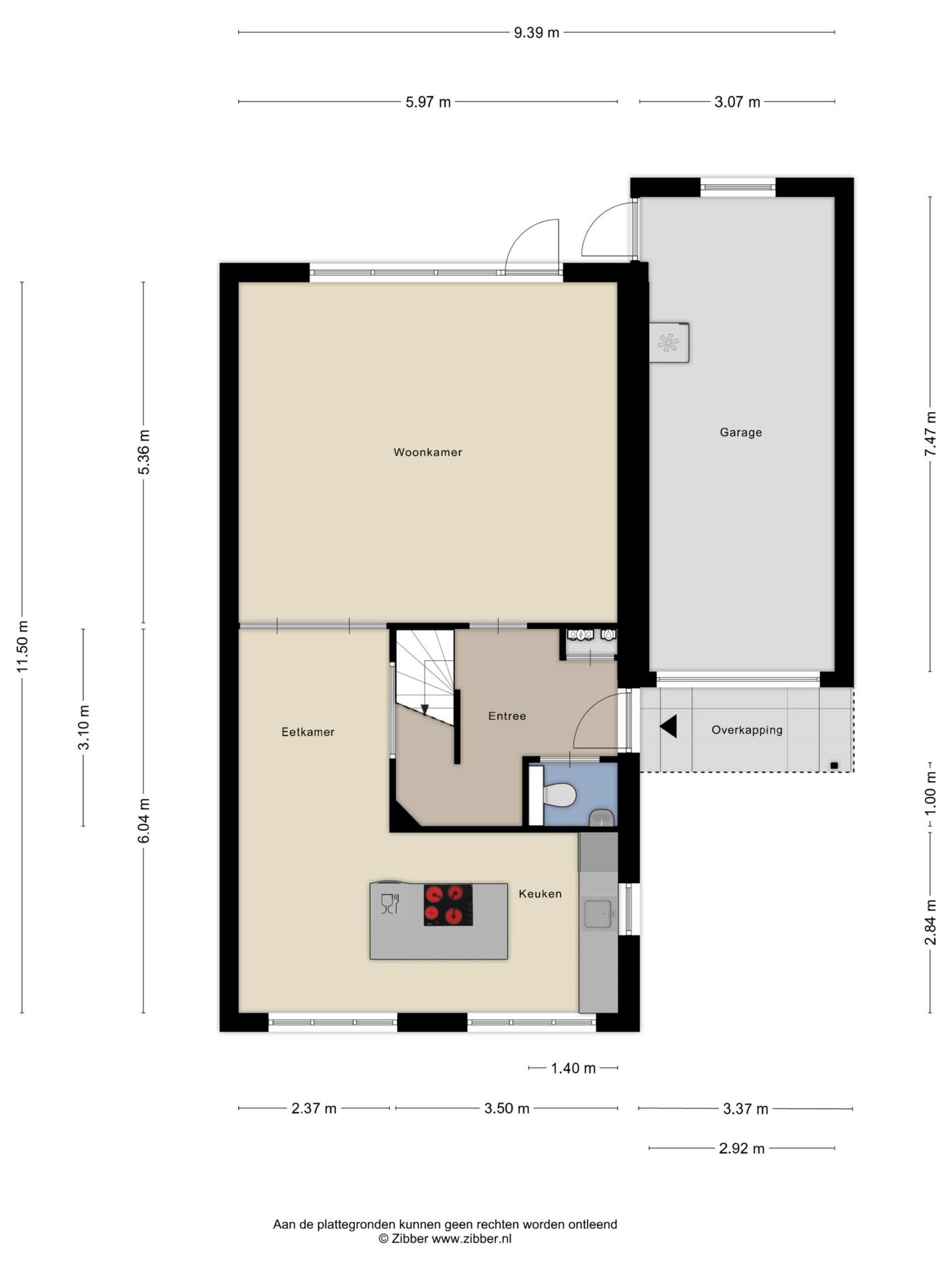
Begane grond: entree, ruime hal met meterkast, toilet voorzien van wandcloset en fonteintje en trapopgang naar de 1e verdieping. Riante tuingerichte woonkamer voorzien van nette visgraadvloer en openslaande tuindeuren. Middels dubbele stalen-framedeur afgesloten woonkeuken voorzien van kookeiland met inductiekookplaat voorzien van geïntegreerde afzuiging, combi-oven, koel-vriescombinatie, vaatwasser en aparte eethoek.
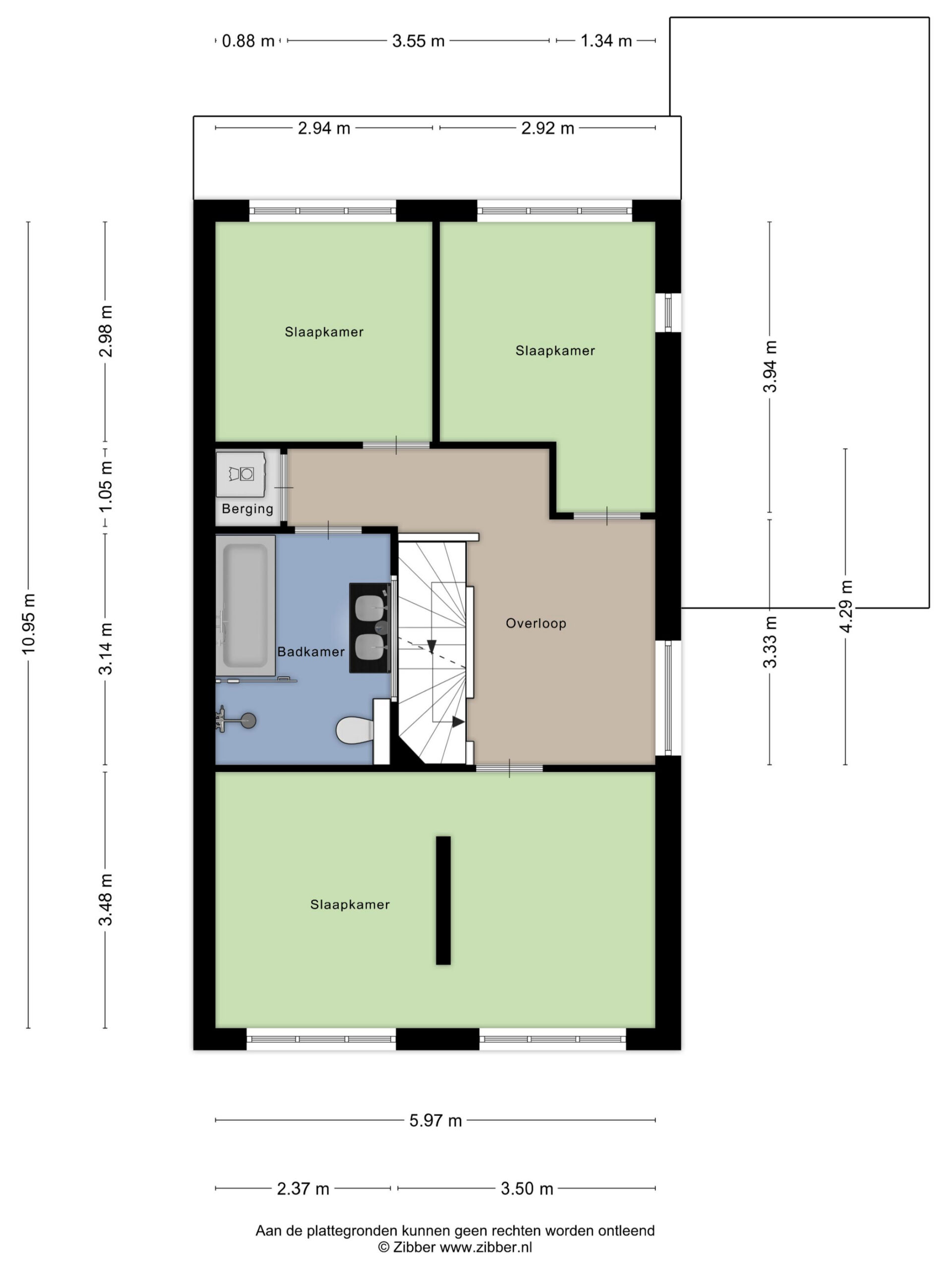
1e Verdieping: ruime overloop met open trappenhuis en berging t.b.v. de wasapparatuur. Drie strak afgewerkte slaapkamers ter grootte van circa 9 m², 10 m² en 21 m². De grote slaapkamer beschikt over een tussenwand waardoor er ruimte is voor een walk in closet! Luxe badkamer voorzien van riante inloop(regen)douche, wandcloset, separaat ligbad, dubbel-wastafelmeubel en handdoekenradiator.
2e Verdieping: riante open zolderruimte met grote dakkapel aan de achterzijde, voorzien van cv-opstelplaats. Deze ruimte leent zich uitermate voor het creëren van één of meerdere kamers!
Onderhoudsvriendelijke achtertuin met terras bij de achtergevel, borderbakken en overkapping met achterom en houten berging achterin. De tuin is ook te bereiken via de aangebouwde garage aan de zijkant van de woning welke ook vanaf voor te bereiken is. Voor deze garage is een oprit aanwezig voor één personenauto op eigen terrein.
kortom: op zoek naar een instapklare gezinswoning boordevol ruimte en luxe afwerking? kom snel kijken bij Hemmingstraat 3 in Leesten Oost!
