Tussenwoning met veel ruimte op korte afstand van de dorpskern! Deze leuke eengezinswoning aan Het Wekenstroo 5 te Warnsveld biedt o.a. een doorzonwoonkamer met parketvloer en houtkachel, half open keuken met tuindeur, vijf (slaap-)kamers verdeeld over de 1e- en 2e verdieping en een nette voor- en achtertuin, beiden voorzien van terras! Het woonoppervlak is 130 m², de inhoud is 461 m³ en het perceel heeft een grootte van 178 m².
De woning is gelegen op zeer korte afstand van de dorpskern van Warnsveld, hier tref je meerdere winkels voor de dagelijkse boodschappen. Ook is het stadscentrum van de nabijgelegen stad Zutphen gelegen op korte fietsafstand. Alle denkbare voorzieningen zijn dan ook binnen handbereik waardoor je van alle gemakken voorzien bent! Verder beschikt Warnsveld over haar eigen scholen, verenigingen en heeft het een prachtig buitengebied in het diverse coulisselandschap van de Achterhoek!
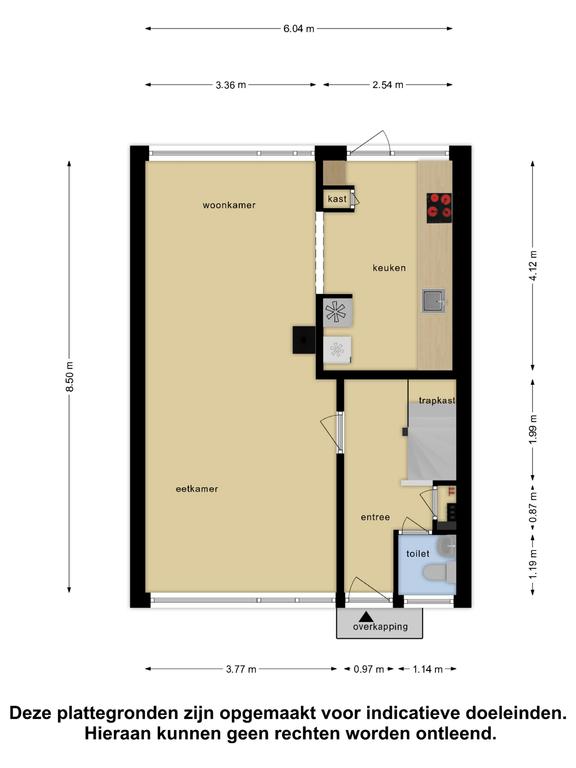
Begane grond: entree, hal met berging onder de trap, trapopgang naar de 1e verdieping en toilet met fonteintje. Doorzonwoonkamer voorzien van houtkachel en parketvloer. Half open keuken met tuindeur, voorzien van afzuigkap en oven (overige apparatuur is ter overname).
1e Verdieping: overloop met vaste kast. Drie slaapkamers ter grootte van circa 9 m², 12 m² en 15,5 m², allen voorzien van laminaatvloer. De twee grote slaapkamers zijn tevens voorzien van vaste kast. Badkamer voorzien van wastafelmeubel, wandcloset, ligbad en douche.
2e Verdieping: overloop met dakraam, studiehoek, cv-opstelplaats en wasmachine-aansluiting. Twee slaapkamers ter grootte van 8 m² en 7 m², beiden voorzien van dakraam en laminaatvloer.
Onderhoudsvriendelijke achtertuin op het westen met terras aan de achtergevel voorzien van zonnescherm. Deze tuin is achterom te bereiken. Naast de achtertuin biedt ook de voortuin voldoende ruimte voor een beschut terras en is voorzien van stenen berging. Parkeren is mogelijk in de straat op de openbare parkeervoorzieningen.
Kortom: tussenwoning op fijne plek nabij de dagelijkse behoeftes in Warnsveld!
