Riant vrijstaand woonhuis op rustige locatie in Leesten! Deze fijne eengezinswoning aan Ina Boudier-Bakkerlaan 34 te Zutphen biedt verrassend veel ruimte binnen en buiten de woning en is o.a. voorzien van een riante woonkamer met zitkamer voorzien van open haard en schuifpui bij de achtertuin, keurige half open woonkeuken met aangebouwde bijkeuken, vier slaapkamers verdeelt over de 1e en 2e verdieping, aparte waskamer, ruime badkamer, separaat 2e toilet, ruim dakterras aan de voorzijde (op het zuidoosten), een ruime tuin rondom met fraai terras, overkapping en aan de voorzijde een ruime garage met oprit! Het woonoppervlak is 182 m², de inhoud 738 m³ en het perceel heeft een grootte van 401 m².
De woning is gelegen aan een rustige laan centraal gelegen in “nieuwbouw” wijk Leesten. Vanaf de woning ben je binnen enkele minuten fietsen bij het wijkwinkelcentrum, waar je de winkels voor de dagelijkse boodschappen treft. Daarnaast ben je ook binnen enkele ogenblikken op de rondweg van Zutphen, waardoor omliggende steden als Apeldoorn, Arnhem en Deventer gemakkelijk te bereiken zijn. Verder staat Zutphen vooral bekend om haar prachtige buitegengebied langs de oevers van rivier de IJssel en haar historische binnenstad!
Begane grond: entree, ruime hal met meterkast, trapkast en toilet voorzien van wandcloset en fonteintje. Riante, strak afgewerkte woonkamer voorzien van houten vloer. Aan de voorzijde is een gezellige zithoek voorzien van gestucte schouw met open haard en aan de achterzijde een (lees)hoek met schuifpui naar de achtertuin. Luxe half open woonkeuken met ruimte voor grote eettafel, voorzien van inductiekookplaat, afzuigkap, combi-oven, koelkast, vriezer, klimaatkast (wijnkoelkast), vaatwasser, Quookerkraan en deur naar de achtertuin. Aangebouwde bijkeuken tevens voorzien van tuindeur.
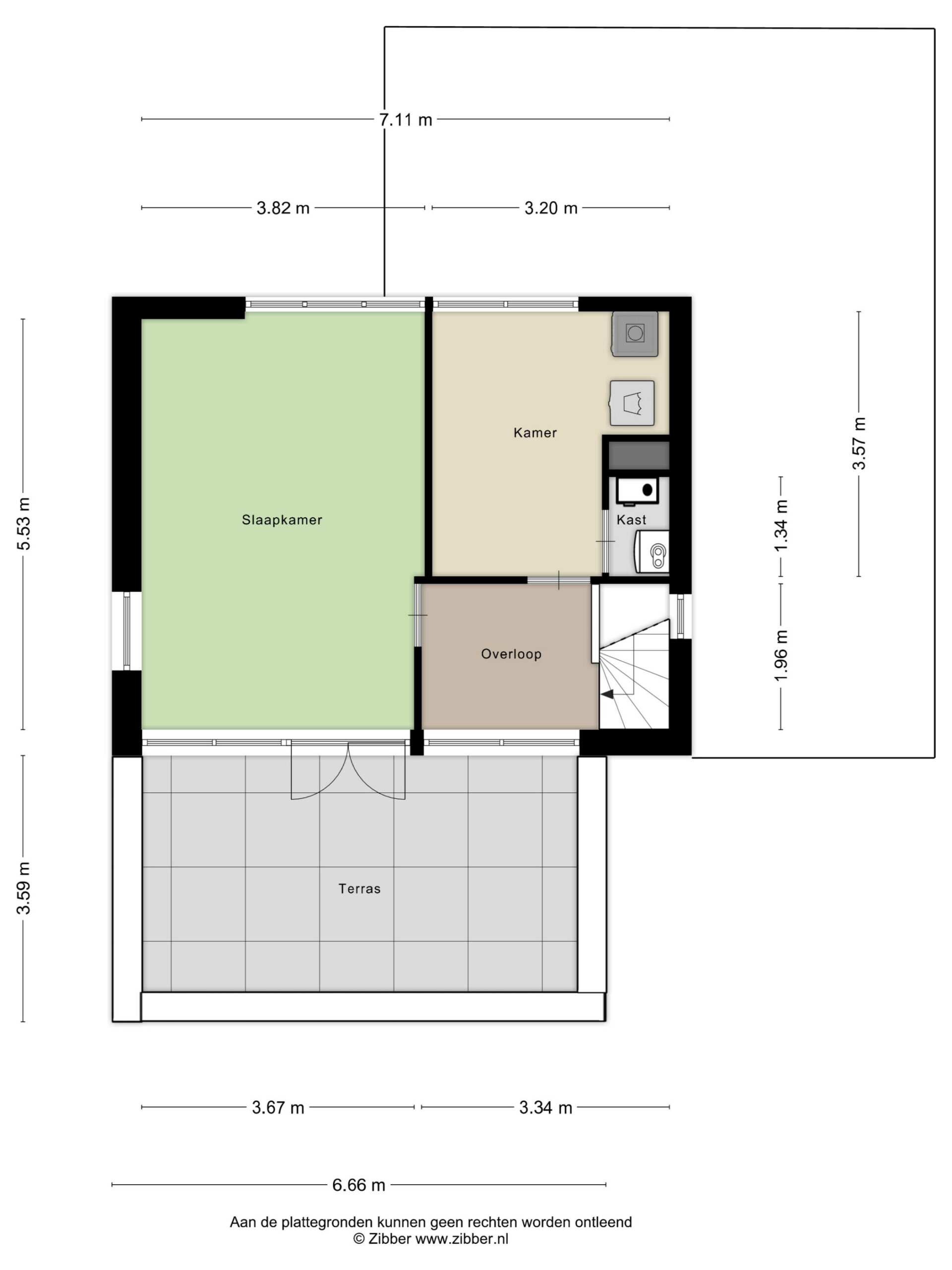
1e Verdieping: ruime overloop. Drie slaapkamers ter grootte van circa 9 m², 15 m² en 16 m², allen voorzien van houten vloeren. De slaapkamer aan de achterzijde beschikt tevens over een inloopkast ter grootte van circa 3,5 m². Ruime badkamer met twee wastafels, ligbad en inloopdouche. Separaat tweede toilet.
2e Verdieping: overloop. Riante vierde slaapkamer ter grootte van circa 21 m² met toegang tot dakterras aan de voorzijde ter grootte van circa 18 m²! Berging/waskamer ter grootte van circa 9,5 m².
Keurig aangelegde achtertuin voorzien van een fraai terras aan de achtergevel, gazon, overkapping achterin en een achterom te bereiken langs de woning. Aan de voorzijde is een siertuin aanwezig, aangebouwde garage ter grootte van circa 16,5 m² en een oprit met parkeerruimte op eigen terrein!
Kortom: op zoek naar een riante gezinswoning in een fijne wijk? Kom snel kijken bij Ina Boudier-Bakkerlaan 34 in Leesten!
