Tot in de puntjes verzorgde geschakelde 2-onder-1 kapwoning aan rustige laan in Leesten Oost! Deze ruime eengezinswoning aan Kolkakkerlaan 58 is gebouwd in 2017 en dan ook helemaal bij de tijd! Zo beschikt de woning o.a. over een ruime tuingerichte woonkamer met pvc-visgraatvloer, ruime open keuken in L-opstelling, drie slaapkamers op de 1e verdieping, nette badkamer met 2e toilet, zolderverdieping met extra slaap/zolderkamer, aangebouwde garage, eigen oprit en een fraai aangelegde achtertuin op het zuiden met houten veranda en berging. Daarnaast is de woning op en top geïsoleerd, voorzien van vloerverwarming op de begane grond en 1e verdieping, warmtepomp, 11 zonnepanelen en beschikt het over energielabel A+++! Het woonoppervlak is 126 m², de inhoud 505 m³ en het perceel heeft een grootte van 216 m².
De woning is gelegen in één van de nieuwste wijken van Zutphen genaamd Leesten Oost. In de nabije omgeving zijn meerdere scholen, (sport-)verengingen en het wijkwinkelcentrum van Leesten te vinden, wat het de ideale gezinslocatie maakt! Daarnaast ben je binnen enkele autominuten op de rondweg te vinden, waardoor omliggende steden als Apeldoorn, Deventer en Arnhem gemakkelijk te bereiken zijn. Verder staat Zutphen o.a. bekend om haar historische binnenstad en diverse buitengebied met talloze wandel- en fietsroutes!
Begane grond: overdekte entree, hal met meterkast, trapopgang naar de 1e verdieping en toilet voorzien van wandcloset en fonteintje. Ruime, woonkamer met openslaande tuindeuren, provisiekast onder de trap en pvc-visgraatvloer. Riante keuken in L-opstelling aan de voorzijde, voorzien van inductiekookplaat, afzuigkap, combi-oven, koelkast, vriezer, vaatwasser en Quooker.
1e Verdieping: overloop. Drie nette slaapkamers (allen met vloerverwarming), ter grootte van circa 7,5 m², 9,5 m² en 12,5 m². De grote slaapkamer is tevens voorzien van een vaste kastenwand. Mooie badkamer voorzien van wandcloset, inloopdouche, wastafelmeubel en designradiator.
2e Verdieping: overloop met opstelplaats voor de warmtepomp. Ruime zolderkamer welke op dit moment is ingericht als werk- en wasruimte, maar uitermate geschikt is als extra slaapkamer.
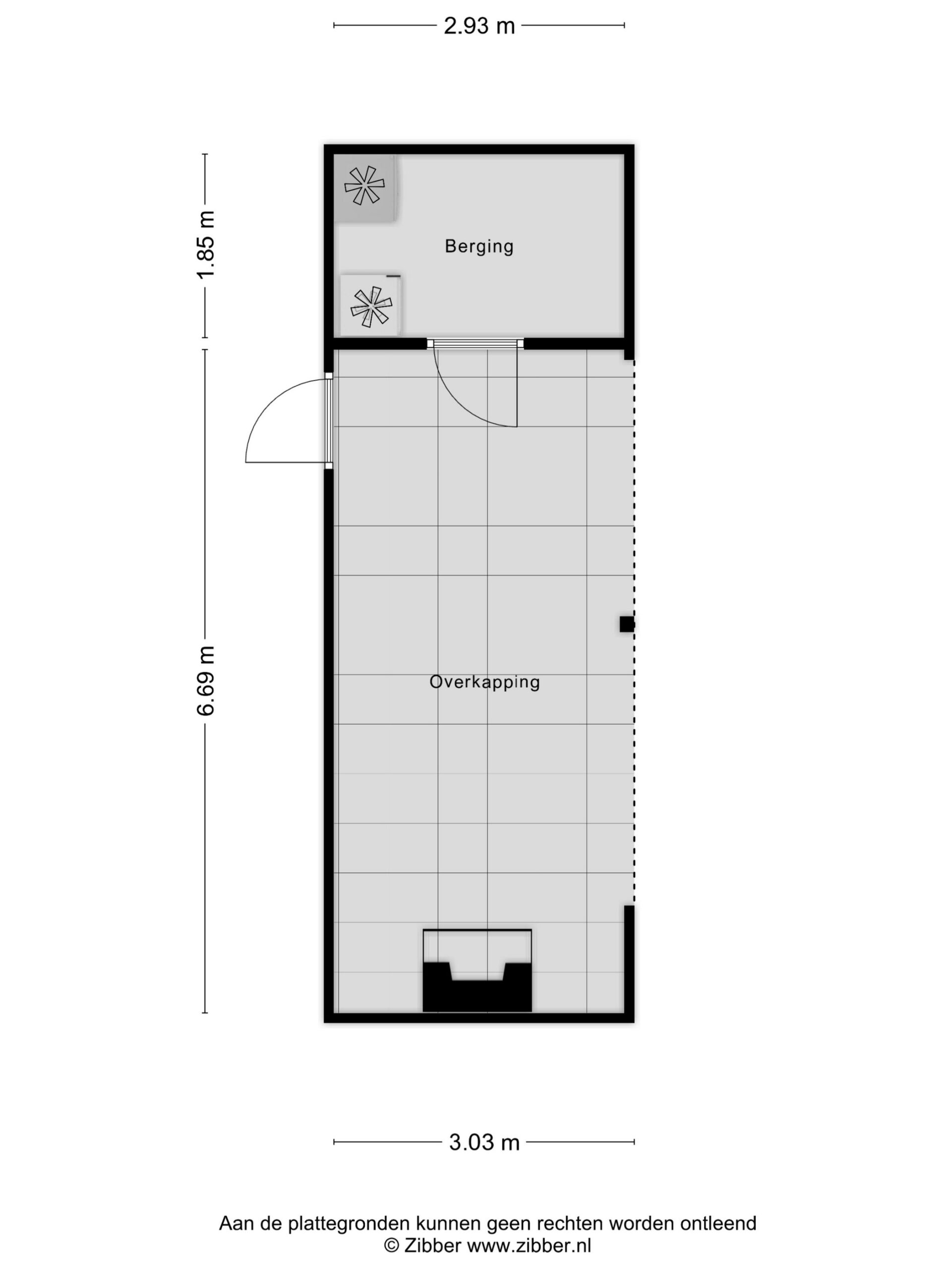
Fraai aangelegde achtertuin op het zuiden met terras tegen de achtergevel, gazon en achterin een veranda met houten berging. De tuin is achterom te bereiken via het achterpad en de aangebouwde garage. Aan de voorzijde is een oprit met parkeerruimte voor één personenauto op eigen terrein.
Kortom: energiezuinige, tot in de puntjes verzorgde 2-onder-1 kapwoning in jonge buurt aan de rand van Zutphen!
