LET OP!!! DEZE WONING IS INMIDDELS VERKOCHT EN NEEMT NIET MEER DEEL AAN HET OPEN HUIS!!!
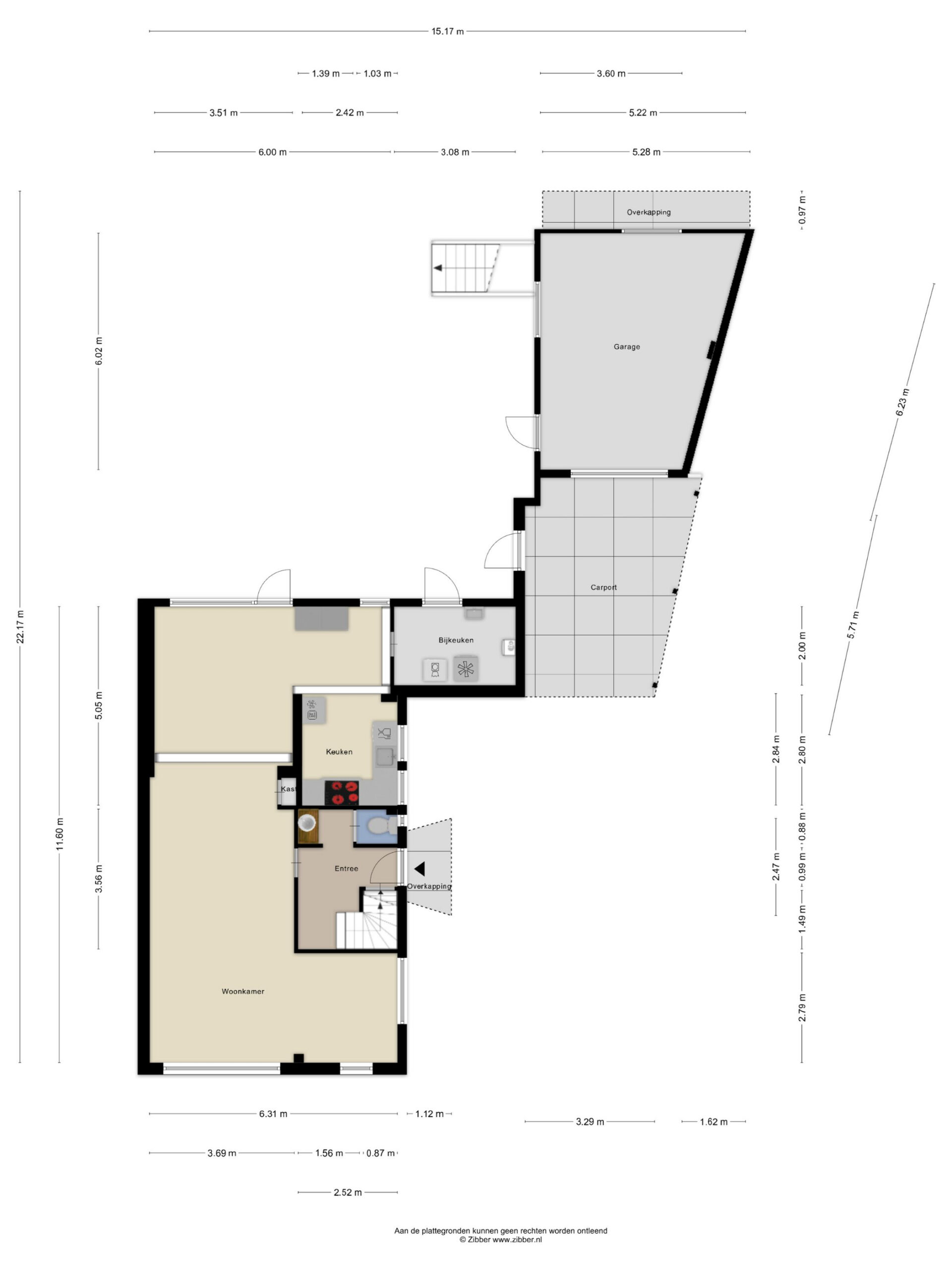
Meer dan uniek half vrijstaand woonhuis met carport en garage, op loopafstand van de Zutphense binnenstad! Deze sfeervolle eengezinswoning aan Koningin Julianalaan 53 is gebouwd in de jaren ’50, maar is helemaal bij de tijd. Zo beschikt de woning o.a. over een volledig gestucte woon-/eetkamer met vloerverwarming in de uitbouw aan de achterzijde, moderne half open keuken, bijkeuken, drie slaapkamers, nette badkamer, bergzolder en een fraai aangelegde achtertuin met grote vrijstaande garage (voorzien van kelder), carport en aan de zijkant een ruime oprit! Ook beschikt de woning over 12 zonnepanelen! Het woonoppervlak is 124 m², de inhoud 561 m³ en het perceel heeft een grootte van 367 m².
De woning is gelegen aan een karakteristieke laan op loopafstand van de Zutphense binnenstad. Op de route naar het centrum loop je langs prachtige herenhuizen, de stadsmuur en rivier de Berkel. Door de ligging zijn ook alle voorzieningen binnen handbereik, waaronder een ruim aanbod aan winkels, horeca, een theater, bioscoop en het intercity treinstation. Verder staat Zutphen o.a. bekend om haar diverse buitengebied langs de oevers van rivier de IJssel en het coulisselandschap van de achterhoek.
Begane grond: overdekte entree, ruime hal met meterkast/kelder, trapopgang naar de 1e verdieping, toilet en nisje met fonteintje (voorzien van close-in boiler). Volledig gestucte, uitgebouwde woonkamer met aan de voorzijde een lichte zithoek en aan de achterzijde de eethoek met vloerverwarming en deur naar de achtertuin. Moderne, half open keuken met inbouw ledverlichting, voorzien van vaatwasser, koelkast, combi-oven en inductiekookplaat. Bijkeuken met wasmachine-aansluiting, cv-opstelplaats, gootsteen en tuindeur.
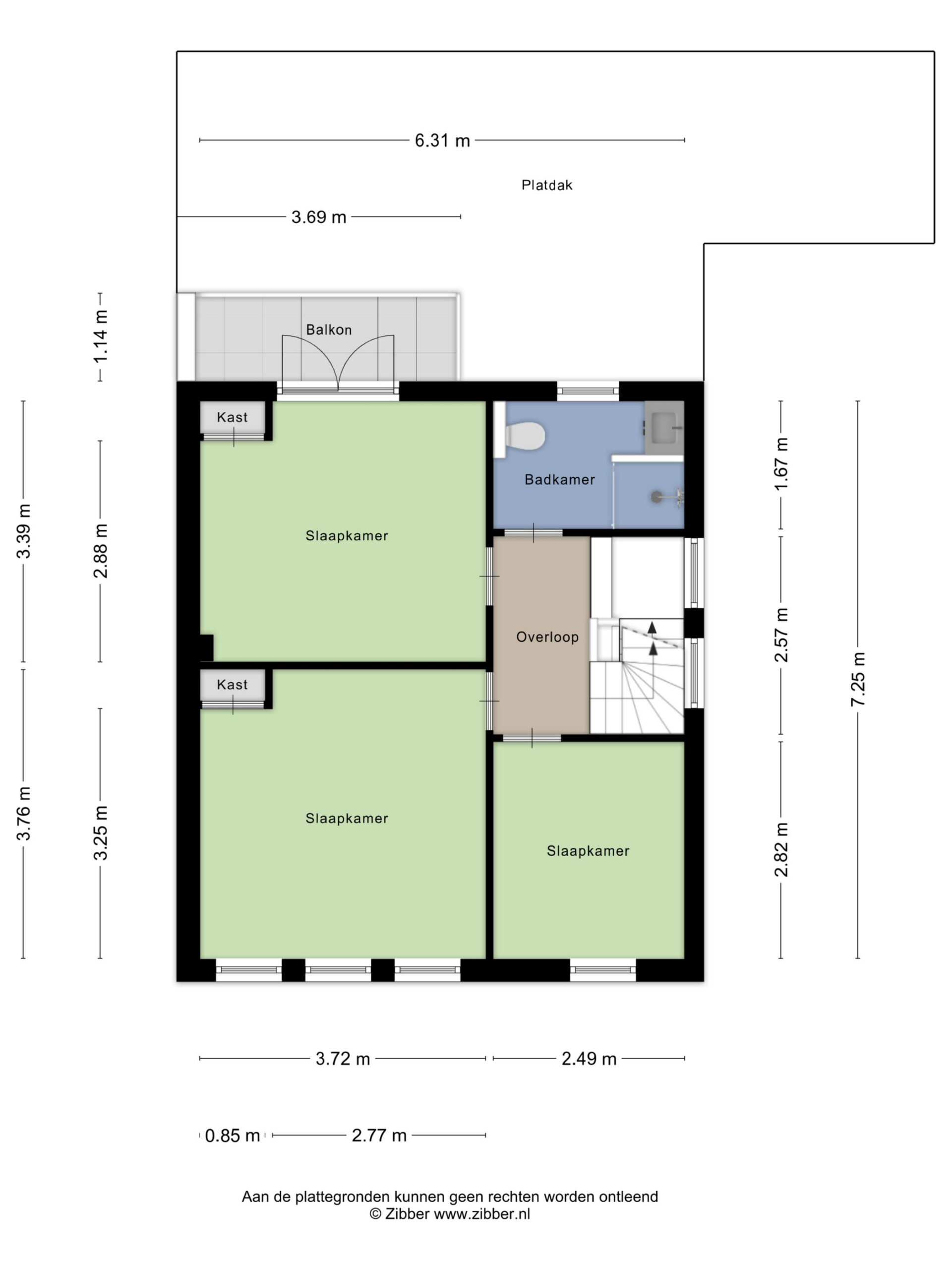
1e Verdieping: overloop. Drie slaapkamers ter grootte van circa 7 m², 12 m² en 13,5 m², waarvan de twee grote slaapkamers zijn voorzien van vaste kast. De slaapkamer aan de achterzijde biedt tevens toegang tot het balkon. Moderne badkamer voorzien van wandcloset, ruime douche en wastafelmeubel.
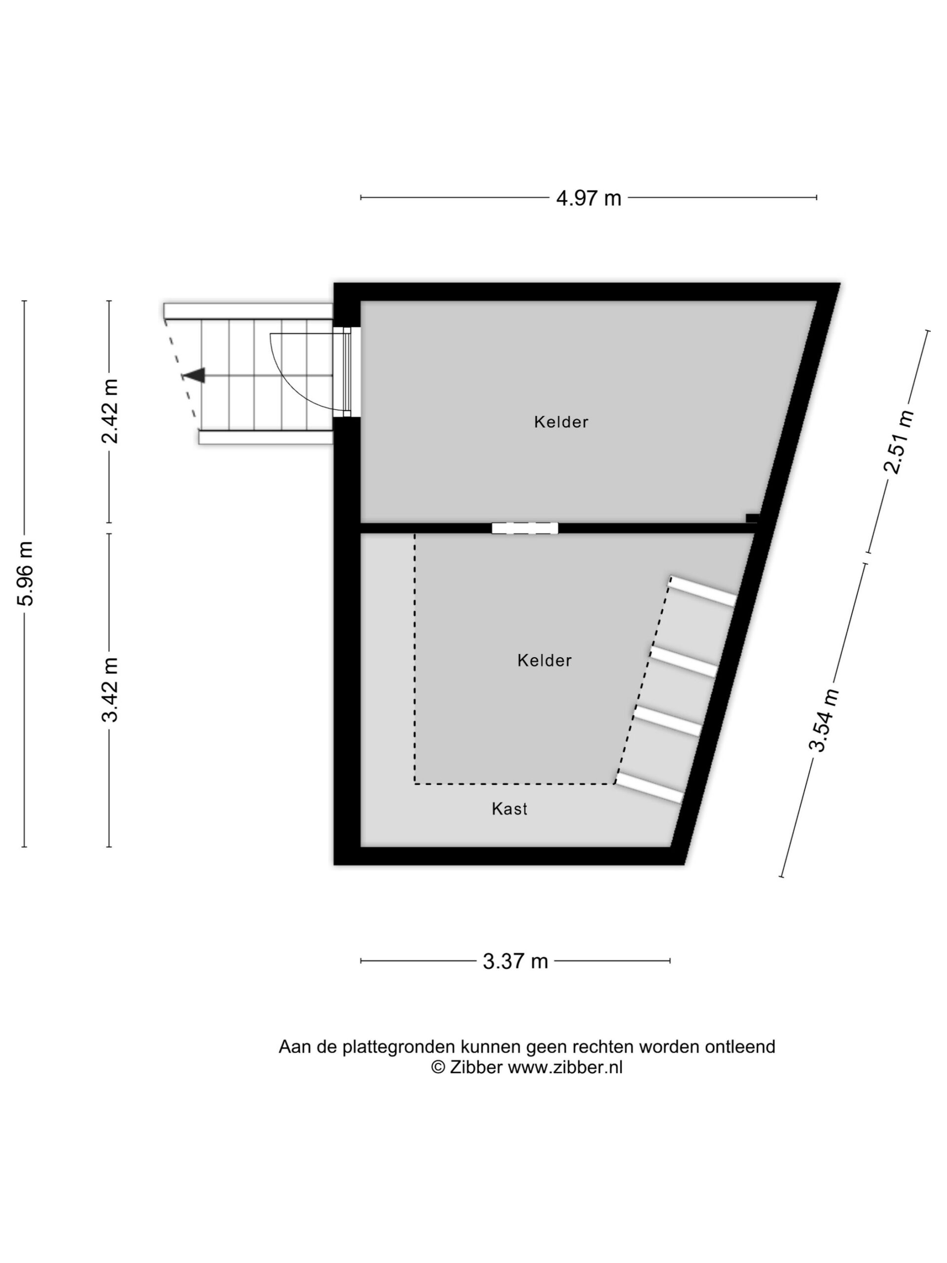
2e Verdieping: middels vaste trap te bereiken bergzolder met dakraampje.
Brede, onderhoudsvriendelijke achtertuin met terras, siertuin en toegang tot de ruime vrijstaande garage (met kelder). Aan de zijkant is een lange oprit aanwezig met aan het einde een carport.
Kortom: uniek wonen nabij de Zutphense binnenstad in karakteristiek droomhuis!
