Instapklare, geschakelde 2-onder-1 kapwoning in één van de nieuwste wijken van Zutphen! Deze nette eengezinswoning uit 2017 is zo goed als nieuw te noemen en is o.a. voorzien van een ruime woonkamer en (luxe) open keuken voorzien van vloerverwarming, extra studio/werkkamer, vijf (slaap-)kamers, ruime badkamer met apart ligbad en inloopdouche. Een onderhoudsvriendelijke achtertuin met overkapping, een (inpandige) berging en oprit voor één personenauto. Daarnaast is de woning volledig geïsoleerd, voorzien van HR++ beglazing, beschikt het over 13 zonnepanelen en zijn veel ruimtes voorzien van airconditioning (zie foto’s)! Het woonoppervlak is 150 m², de inhoud 532 m³ en het perceel heeft een grootte van 244 m².
De woning is gelegen in Leesten Oost, één van de nieuwste wijken van Zutphen. De wijk kenmerkt zich als een rustige woonomgeving met genoeg groen, speelveldjes en het wijkwinkelcentrum op korte afstand. Daarnaast ben je binnen enkele ogenblikken op de rondweg van de stad waardoor omliggende steden als Apeldoorn, Deventer en Arnhem gemakkelijk te bereiken zijn. Verder staat Zutphen o.a. bekend om haar sfeervolle historische binnenstad en haar prachtige buitengebied met talloze wandel en fietsroutes!
Begane grond: entree, hal met meterkast en toilet voorzien van wandcloset en fonteintje. Riante woonkamer met ruime zithoek aan de voorzijde en eethoek met openslaande terrasdeuren bij de keuken, voorzien van vloerverwarming en trapopgang naar de 1e verdieping. Luxe open keuken met spoeleiland, voorzien van inductiekookplaat, afzuigkap, combi-oven, stoom combi-oven, koel-vriescombinatie, vaatwasser en kookwaterkraan (5L boiler). Vanuit de keuken te bereiken, voormalige garage welke is opgedeeld in een berging/schuur en (geïsoleerde) studio/werkkamer met airconditioning, welke toegang biedt tot de achtertuin.
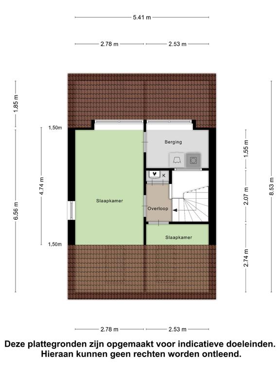
1e Verdieping: overloop. Drie slaapkamers ter grootte van circa 9 m², 10,5 m² en 12 m², allen keurig afgewerkt, voorzien van HR++ beglazing en airconditioning. Ruime badkamer voorzien van inloop regendouche, apart ligbad, dubbel-wastafelmeubel en wandcloset.
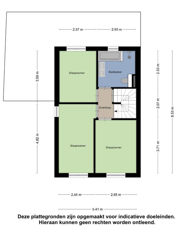
2e Verdieping: overloop met vaste kast t.b.v. de cv-installatie. Twee (slaap-)kamers ter grootte van circa 2 m² en 13 m². De grote kamer beschikt over een dakkapel, airconditioning en toegang tot de wasruimte.
Onderhoudsvriendelijke achtertuin op het westen met overkapt terras aan de achtergevel, kunstgras, vlonder en houten berging. Aan de voorzijde staan leibomen en is een oprit aanwezig voor één personenauto met laadpaal. De airconditioning kan naast koelen tevens verwarmen, waardoor de gasrekening laag is.
Kortom: instapklare, hypermoderne gezinswoning op rustige locatie in Leesten Oost!
