Riant half vrijstaand woonhuis, tot in de puntjes afgewerkt in nieuwe wijk! Deze verrassend ruime eengezinswoning aan Morganlaan 14 te Zutphen is helemaal bij de tijd en biedt alles wat je maar kunt wensen. Zo beschikt de woning o.a. over een riante woonkamer met serre, luxe woonkeuken met kookeiland, aangebouwde berging en bijkeuken, vier ruime slaapkamers, chique badkamer, keurig aangelegde achtertuin op het zuiden met houten berging/overkapping en aan de voorzijde een ruime oprit. Daarnaast is de woning volledig geïsoleerd, beschikken alle verdiepingen over vloerverwarming en zijn er maar liefst 14 zonnepanelen aanwezig! Het woonoppervlak is 191 m², de inhoud 742 m³ en het perceel heeft een grootte van 479 m².
De woning is gelegen aan de buitenrand van Leesten Oost, één van de nieuwste wijken van Zutphen. Het wijkwinkelcentrum van Leesten is gelegen op loopafstand, waardoor de dagelijkse boodschappen gemakkelijk in huis te halen zijn. Ook tref je hier skatepark “The Canyon” waar altijd wat te beleven is! Verder staat de stad Zutphen o.a. bekend om haar historische binnenstad en haar prachtige buitengebied bij de oevers van rivier de IJssel en het coulisselandschap van de Achterhoek.
Begane grond: overdekte entree, ruime hal met meterkast, trapkast, garderobenis, trapopgang naar de 1e verdieping en toilet voorzien van wandcloset en fonteintje. Ruime woonkamer voorzien van keramische parketvloer, schouw met gashaard en toegang tot de aangebouwde serre, welke volledig is voorzien van schuiframen, waardoor het een mooie verlenging van de woonkamer is. Luxe woonkeuken met ruime eethoek en kookeiland, voorzien van inductiekookplaat met geïntegreerde afzuiging, combi-oven, koelkast, vriezer, vaatwasser, Quooker en inbouw-koffiezetapparaat. Aangebouwde (fietsen)berging en volledig geïsoleerde bijkeuken met kastenwand en keukenblokje.
1e Verdieping: overloop met vaste kast. Drie slaapkamers waarvan twee ter grootte van circa 11 m² en één ter grootte van circa 18,5 m², allen keurig afgewerkt en voorzien van PVC-vloer. De grote slaapkamer is tevens voorzien van vaste kastenwand. Luxe afgewerkte badkamer, met dubbel-wastafelmeubel, ruime inloopdouche, wandcloset en designradiator.
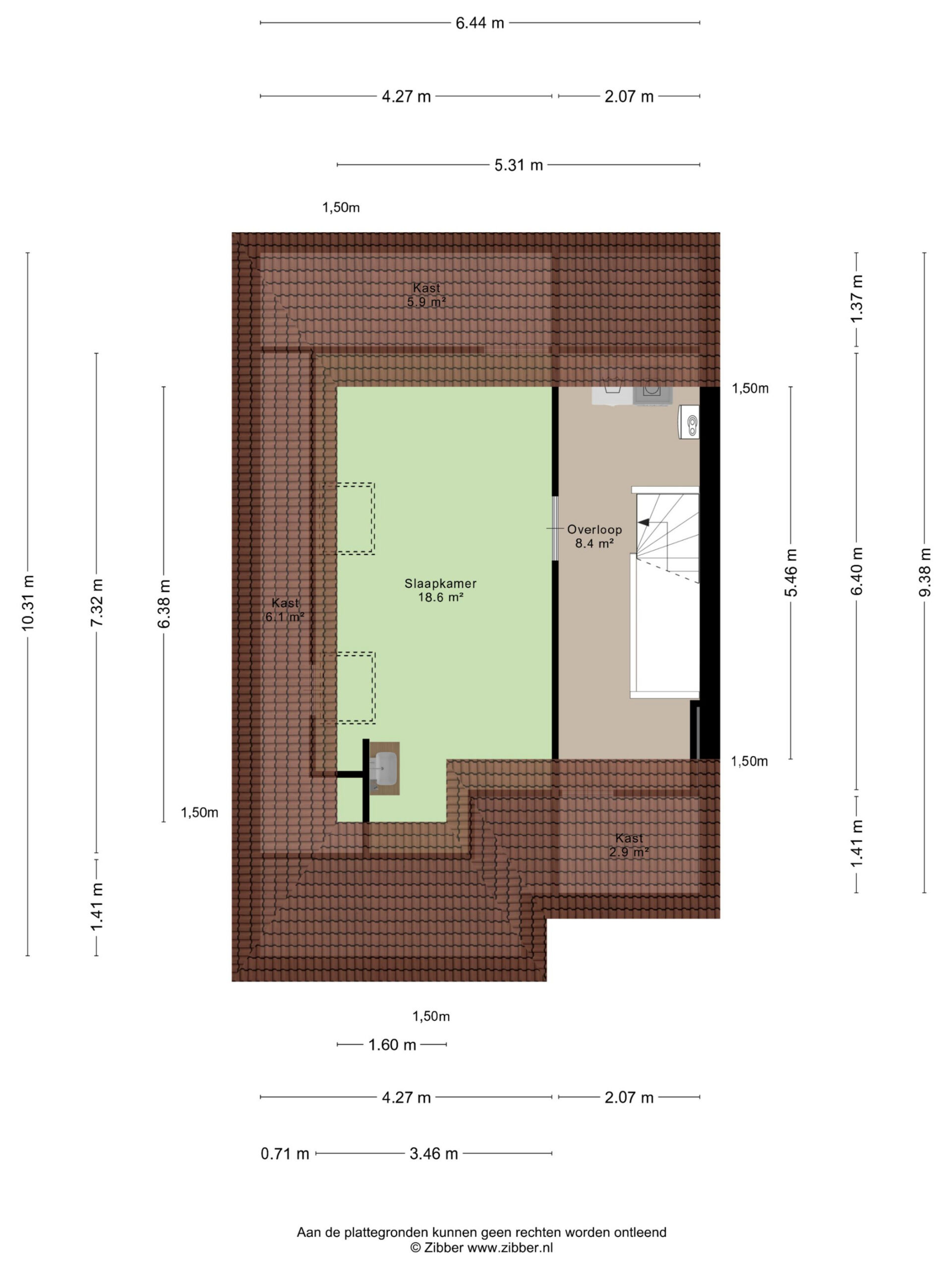
2e Verdieping: ruime overloop/voorzolder met aansluiting voor de wasapparatuur, cv-opstelplaats en inbouwkast. Riante vierde slaapkamer met twee grote dakramen en eigen wastafel, ter grootte van circa 18,5 m².
Alle rolluiken op de bovenverdieping zijn volledig elektrisch bedienbaar evenals de screens aan de veranda/serre.
Keurig aangelegde achtertuin op het zuiden, met terras tegen de achtergevel, meerdere borders, trap naar wal en houten berging/overkapping. Aan de voorzijde is een ruime oprit aanwezig met parkeerruimte voor twee personenauto’s op eigen terrein.
Kortom: opzoek naar een riante woning in één van de nieuwste wijken van Zutphen? Maak snel een afspraak bij Morganlaan 14!
