Prachtige maisonnette in monumentaal pand, middenin het stadscentrum van Zutphen! Deze bijzondere woning aan Naadzak 14 biedt prachtig uitzicht over de markt en de welbekende wijnhuistoren en is o.a. voorzien van ruime, strak afgewerkte woonkamer, luxe open keuken, drie slaapkamers, moderne badkamer, berging/wasruimte, besloten balkon/dakterras, ruime bergzolder en berging in de oude gewelvenkelder van het complex. Het woonoppervlak is 112 m² en de inhoud 421 m³.
De Naadzak is gelegen middenin het hartje van Zutphen, waardoor alle voorzieningen binnen handbereik zijn. Denk hierbij aan een ruim aanbod aan horeca, detailhandel, een theater, bioscoop en het intercity treinstation. Daarnaast woon je op enkele minuten wandelafstand van de IJsselkade, waar het hele jaar een prachtig uitzicht over de uiterwaarden op je te wachten staat. Vanuit de woonkamer heb je uitzicht over het bruisende marktplein, waar altijd wat te beleven is.
Begane grond: gemeenschappelijke entree met brievenbussen, trapopgang naar de woonverdieping en toegang tot de inpandige (privé)berging in de kelder.
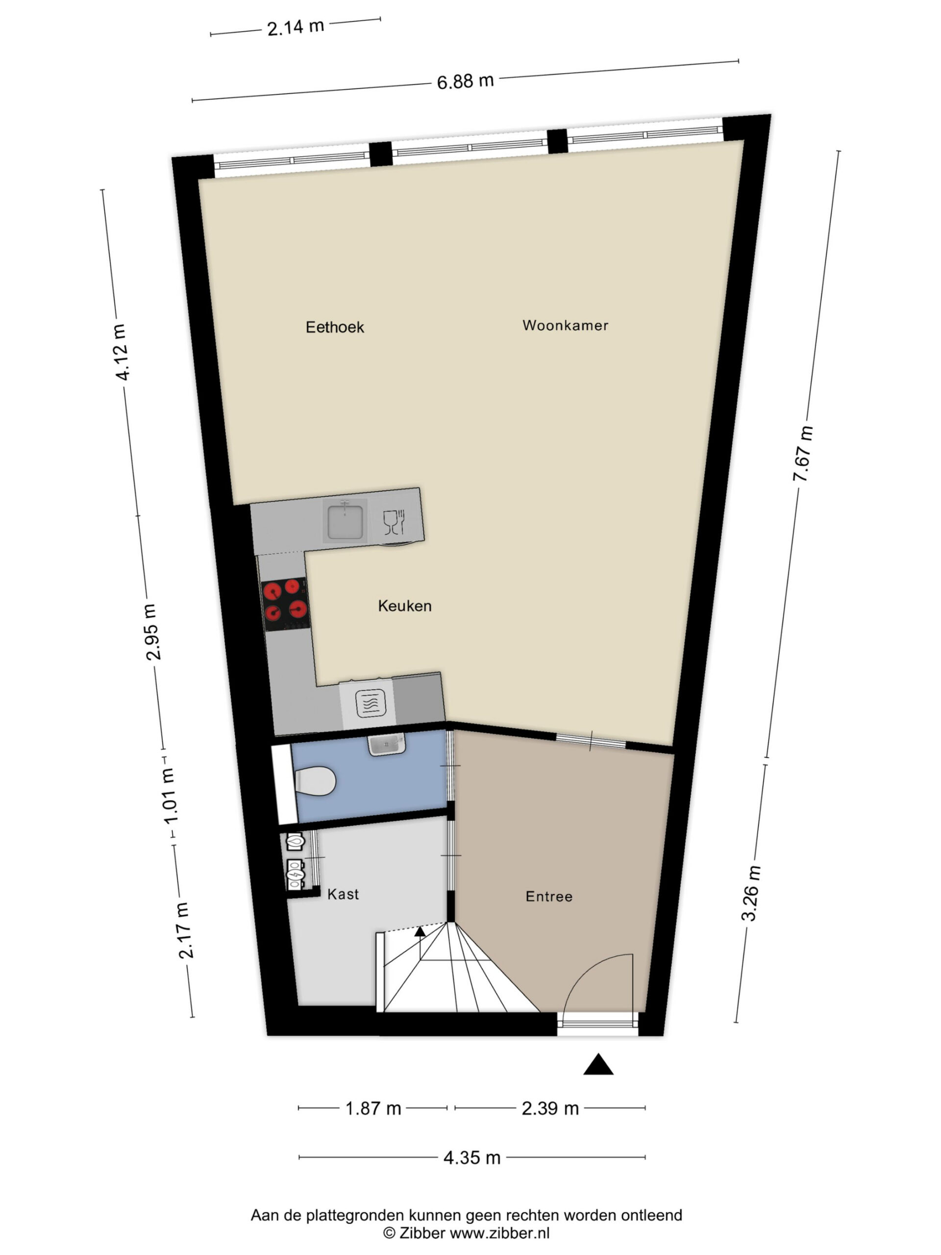
1e woonlaag: entree, hal met trapopgang naar de verdieping, berging met meterkast en toilet voorzien van wandcloset en fonteintje. Ruime woonkamer met werkelijk prachtig uitzicht over de markt en de wijnhuistoren, voorzien van visgraatvloer en schouw. Luxe open keuken in U-opstelling, voorzien van inductiekookplaat met geïntegreerde afzuiging, combi-oven, koelkast, vriezer en vaatwasser.
2e woonlaag: ruime overloop met vlizotrap naar de bergzolder en toegang tot de wasruimte/berging met cv-opstelplaats. Drie slaapkamers ter grootte van circa 8 m², 9,5 m² en 10,5 m², alle tot in de puntjes afgewerkt, maar toch met behoud van authentieke details. Nette badkamer voorzien van dakraam, met ruime douche, dubbel-wastafelmeubel en wandcloset. Besloten balkon/dakterras ter grootte van circa 4 m².
Zolder: vanaf de overloop, middels vlizotrap te bereiken bergzolder.
De kosten aan de VvE bedragen maandelijks €228,-
Kortom: meer dan unieke maisonnette in eeuwenoud monument, middenin het oude centrum van Zutphen!
