Half vrijstaand woonhuis met veel ruimte en inpandige garage! Deze goed onderhouden woning aan Nienke van Hichtumplein 14 in Leesten is o.a. voorzien van een riante tuingerichte woonkamer, half open woonkeuken met unieke plaatsing halverwege de woning, vijf slaapkamers verdeeld over de 1e- en 2e verdieping, ruime badkamer met o.a. ligbad, toilet en separate douche, groene achtertuin met terras tegen de achtergevel, achterom en parkeerruimte op eigen terrein aan de voorzijde. Tevens is de woning gedeeltelijk voorzien van kunststof kozijnen met HR++ glas. Het woonoppervlak is 164 m², de inhoud 664 m³ en het perceel heeft een grootte van 253 m².
De woning is gelegen aan een rustige pleintje in de Zutphense “nieuwbouw” wijk Leesten. Door de ligging is het heerlijk rustig wonen. Leesten beschikt over haar eigen wijkwinkelcentrum voor de dagelijkse boodschappen waardoor je van alle gemakken voorzien bent. Ook ben je binnen enkele ogenblikken op de rondweg van de stad waardoor omliggende steden als Apeldoorn, Deventer en Arnhem gemakkelijk te bereiken zijn. Verder biedt Zutphen o.a. een ruim aanbod aan scholen, verenigingen en biedt het een gezellig oud centrum waar altijd wat te doen is!
Begane grond: entree, hal met meterkast, trapkast, trapopgang naar de 1e verdieping, toegang tot de ruime inpandige garage en modern toilet voorzien van wandcloset en fonteintje. Ruime, keurig afgewerkte woonkamer voorzien openslaande deuren naar de achtertuin. Woonkeuken met eethoek aan de voorzijde en keukenopstelling tussen de eethoek en woonkamer in, wat een uniek detail is in deze woning! Deze stijlvolle keuken beschikt o.a. over een inductiekookplaat, (gas) wokbrander, oven, afzuigkap, koelkast en vaatwasser.
1e Verdieping: overloop. Drie slaapkamers ter grootte van circa 7,5 m², 10 m² en 16,5 m² en een badkamer voorzien van ligbad separate inloopdouche, dubbel wastafelmeubel, wandcloset en handdoekenradiator.
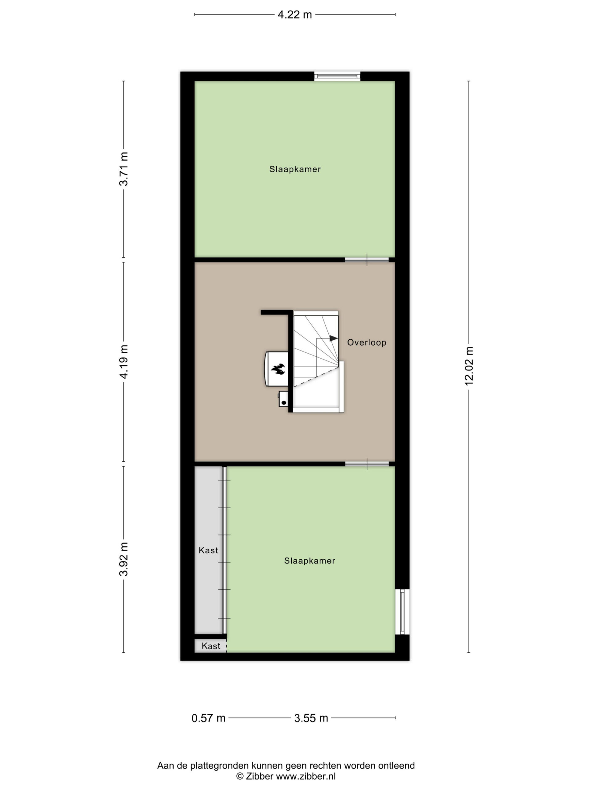
2e Verdieping: ruime overloop met wasmachine-aansluiting en cv-opstelplaats. Twee slaapkamers ter grootte van circa 14 m en 15,5 m². De kamer aan de voorzijde is tevens voorzien van ruime kastenwand.
Fraai aangelegde zonnige achtertuin met terras tegen de achtergevel, veel groen en looppad naar de poortdeur (achterom). Parkeren is mogelijk voor de garage open eigen terrein aan de voorzijde.
Kortom: op zoek naar een ruime eengezinswoning in Leesten? Kom snel eens kijken aan het Nienke van Hichtumplein 14!
