Uitgebouwd, half vrijstaand woonhuis aan het water op korte afstand van de Zutphense binnenstad! Deze ruime eengezinswoning aan Rietbergstraat 11 is helemaal bij de tijd, heeft verrassend veel wooncomfort. Zo biedt de woning o.a. een ruime woonkamer aan de voorzijde met erker, uitgebreide woonkeuken met schuifpui naar de achtertuin, vijf slaapkamers verdeeld over de 1- en en 2e verdieping, dakterras, ruime aangebouwde garage met elektrische deur, welke van binnenuit te bereiken is, oprit met parkeerruimte voor drie personenauto’s op eigen terrein en een luxe ingerichte achtertuin aan rivier de Berkel. Daarnaast is de woning volledig (na)geïsoleerd en voorzien van 14 zonnepanelen waardoor het beschikt over energielabel A! Het woonoppervlak is 179 m², de inhoud 722 m³ en het perceel heeft een grootte van 403 m².
De woning is gelegen in een rustige straat langs rivier de Berkel op loopafstand van de Zutphense binnenstad. Het stadscentrum van Zutphen biedt alle denkbare voorzieningen en staat vooral bekend om haar sfeervolle karakter door de vele historische gebouwen uit de Hanzetijd. Ook ben je binnen enkele ogenblikken aan de oevers van rivier de IJssel om even lekker uit te waaien. Meer weten over Zutphen en haar omgeving? Informeer bij ons op kantoor!
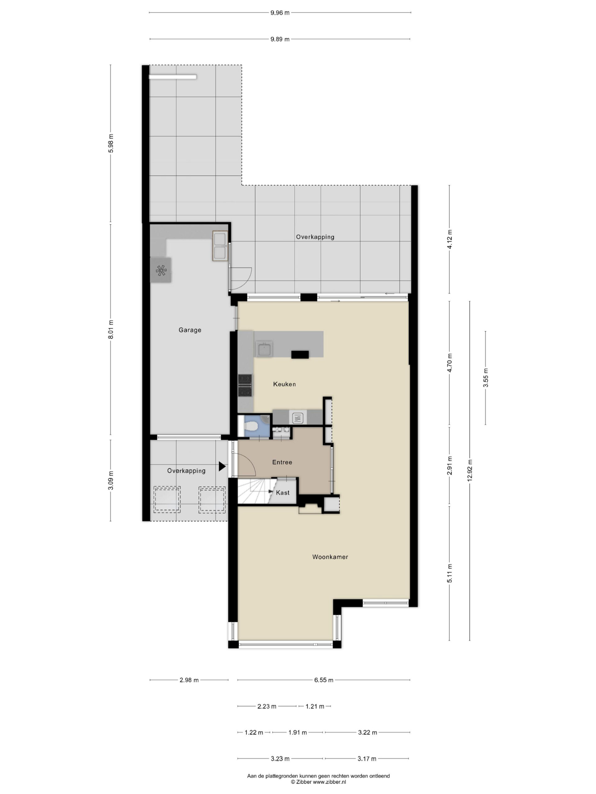
Begane overdekte entree, hal met meterkast, trapkast en toilet voorzien van wandcloset en fonteintje. Riante woonkamer voorzien van PVC vloer, met zithoek aan de voorzijde voorzien van erker en gashaard. Luxe woonkeuken aan de achterzijde met eethoek voorzien van schuifpui naar de veranda. De uitgebreide keuken beschikt o.a. over een grote vriezer met 5-lades, combi-oven, koelkast, Bertazzoni gasfornuis met oven en 6-pits gasstel, afzuigkap, vaatwasser en kokend waterkraan (Grohe Red). Vanuit de keuken te bereiken aangebouwde garage met elektrische deur aan de voorzijde en deur naar de achtertuin.
1e Verdieping: overloop. Drie slaapkamers ter grootte van circa 12 m², 13 m² en 15 m², waarvan twee voorzien van vaste kasten. De slaapkamer aan de achterzijde biedt tevens toegang tot het dakterras op de uitbouw en beschikt over airconditioning. Ruime badkamer voorzien van elektrische vloerverwarming, met dubbel wastafelmeubel, inloopdouche, wandcloset en elektrische design radiator.
2e Verdieping: overloop/voorzolder met cv-opstelplaats, aansluiting voor de wasapparatuur, wastafel en bergruimte achter de knieschotten. Twee slaapkamers ter grootte van circa 9 m² en 16 m², beiden voorzien van dakkapel.
De woning beschikt over een luxe ingerichte achtertuin op het zuidoosten met eigen toegang naar rivier de Berkel. De tuin is voorzien van riante (glazen) veranda aan de achtergevel en een fraaie houten overkapping met gezellige zithoek, uitermate geschikt voor een buitenkeuken! Voor het huis is een mooie siertuin aangelegd en op de royale oprit (eigen terrein) is er parkeerruimte voor drie personenauto’s.
Kortom: op zoek naar een ruime woning met veel luxe aan rivier de Berkel gelegen en op korte afstand van de Zutphense binnenstad? Kom dan snel kijken bij Rietbergstraat 11!
