WIJ PLANNEN GEEN BEZICHTIGINGSAFSPRAKEN MEER
Half-vrijstaande woning gelegen op een riant perceel! Deze unieke woning aan Slindewaterstraat 1 a verdient aandacht, maar zit vol mogelijkheden. Zo beschikt de woning over een garage en slaapkamer op de begane grond, op de 1e verdieping de woonkamer, keuken met balkon, badkamer en tweede slaapkamer. Verder biedt de woning een riant perceel met overkapping achterin. Door de indeling is werken vanuit huis zeker één van de mogelijkheden! Het woonoppervlak is 92 m², de inhoud 415 m³ en het perceel heeft een grootte van 373 m².
De woning is gelegen in een rustige woonwijk op korte afstand van de Zutphense binnenstad. Door de ligging zijn dan ook alle voorzieningen binnen handbereik. Daarnaast is de buurtsupermarkt op loopafstand te bereiken waar je terecht kan voor de dagelijkse boodschappen. In het stadscentrum van Zutphen is altijd wat te beleven en worden veel terugkerende evenementen georganiseerd, zoals de Nationale Bokbierdag, Het Chocoladefestival en de Zomerfeesten. Meer weten over Zutphen en haar omgeving? Informeer bij ons op kantoor.
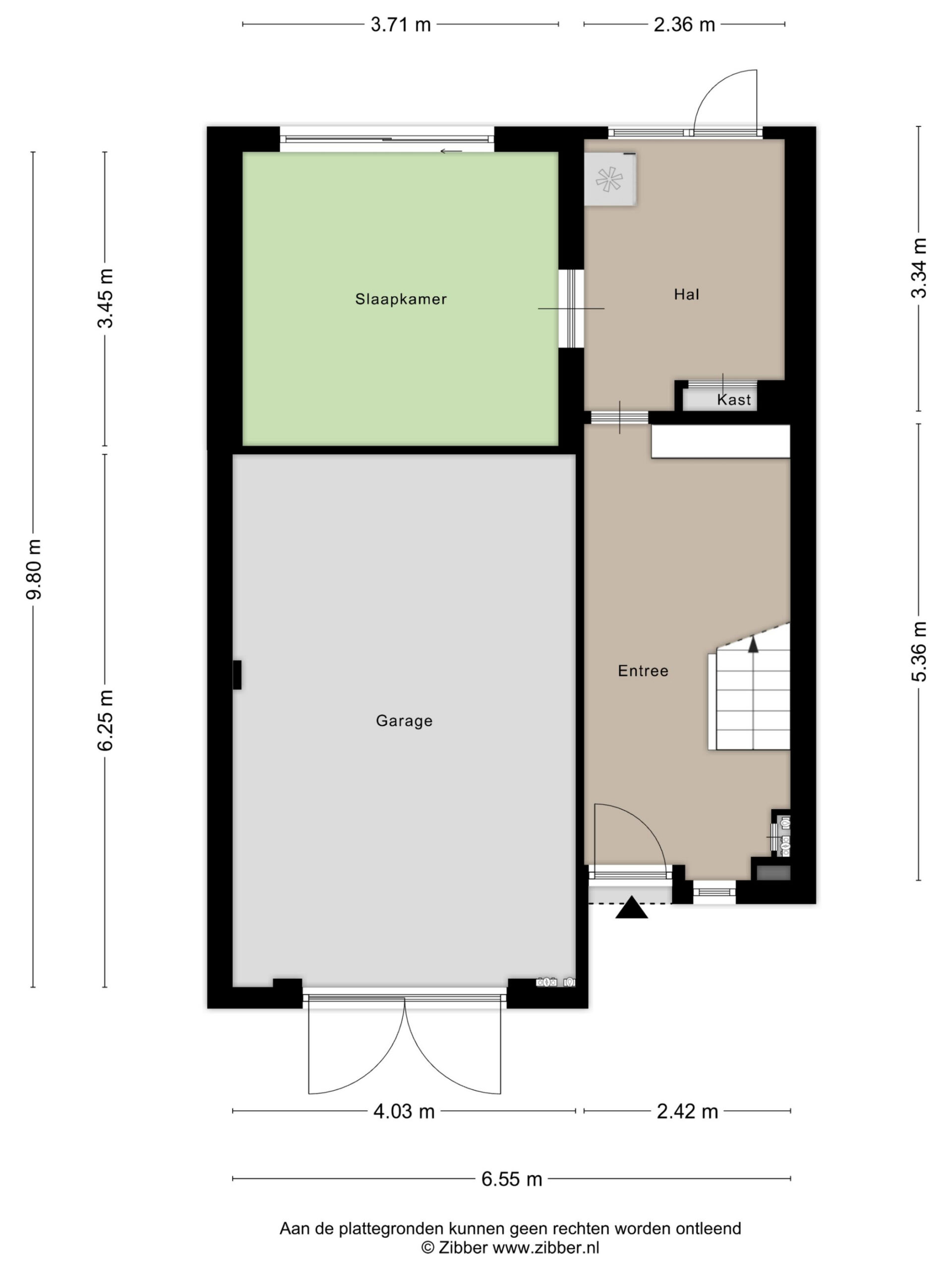
Begane grond: entree met trapopgang naar de 1e verdieping en meterkast. Tussenhal met tuindeur. (Slaap)kamer ter grootte van circa 13 m², voorzien van laminaatvloer en schuifpui naar de achtertuin. Inpandige garage ter grootte van circa 25 m², welke vanaf de straat te bereiken is.
1e Verdieping: overloop met vaste kasten. Ruime woonkamer aan de voorzijde, voorzien van laminaatvloer en vaste kast. Dichte keuken met toegang tot het balkon aan de achterzijde. Slaapkamer ter grootte van circa 8,5 m². Badkamer voorzien van wastafelmeubel, douche, wandcloset, wasmachine-aansluiting en cv-opstelplaats.
De woning beschikt over een riante tuin welke achterom te bereiken is via de zijkant. Op dit moment is de tuin nog aan te leggen en achterin staat een (oude) overkapping.
Kortom: unieke 2-onder-1 kapwoning met veel mogelijkheden, op korte afstand van de Zutphense binnenstad!
