Tot in de puntjes afgewerkte jaren ’30 tussenwoning in rustige buurt! Deze sfeervolle woning aan Slindewaterstraat 69 is helemaal bij de tijd en dat met behoud van authentieke details. De woning is o.a. voorzien van een lichte woonkamer met erker aan de voorzijde en aan de achterzijde openslaande tuindeuren, dichte keuken met tuindeur, drie slaapkamers verdeeld over de 1e- en 2e verdieping, stijlvolle badkamer met toegang tot het balkon, provisiekelder en een nette achtertuin met houten berging en achterom. Ook beschikt de woning over 6 zonnepanelen! Het woonoppervlak is 101 m², de inhoud 359 m³ en het perceel heeft een grootte van 110 m².
De woning is gelegen in een karakteristieke buurt in het noorden van Zutphen. In de nabije omgeving zijn meerdere scholen en een buurtsupermarkt te vinden wat het de ideale locatie maakt voor een (jong) gezin. Daarnaast is het oude stadscentrum van Zutphen gelegen op circa 5 minuten fietsafstand. Hier tref je een ruim aanbod aan horeca, detailhandel, een bioscoop, theater en intercity treinstation. Meer weten over Zutphen en haar omgeving? Informeer bij ons op kantoor!
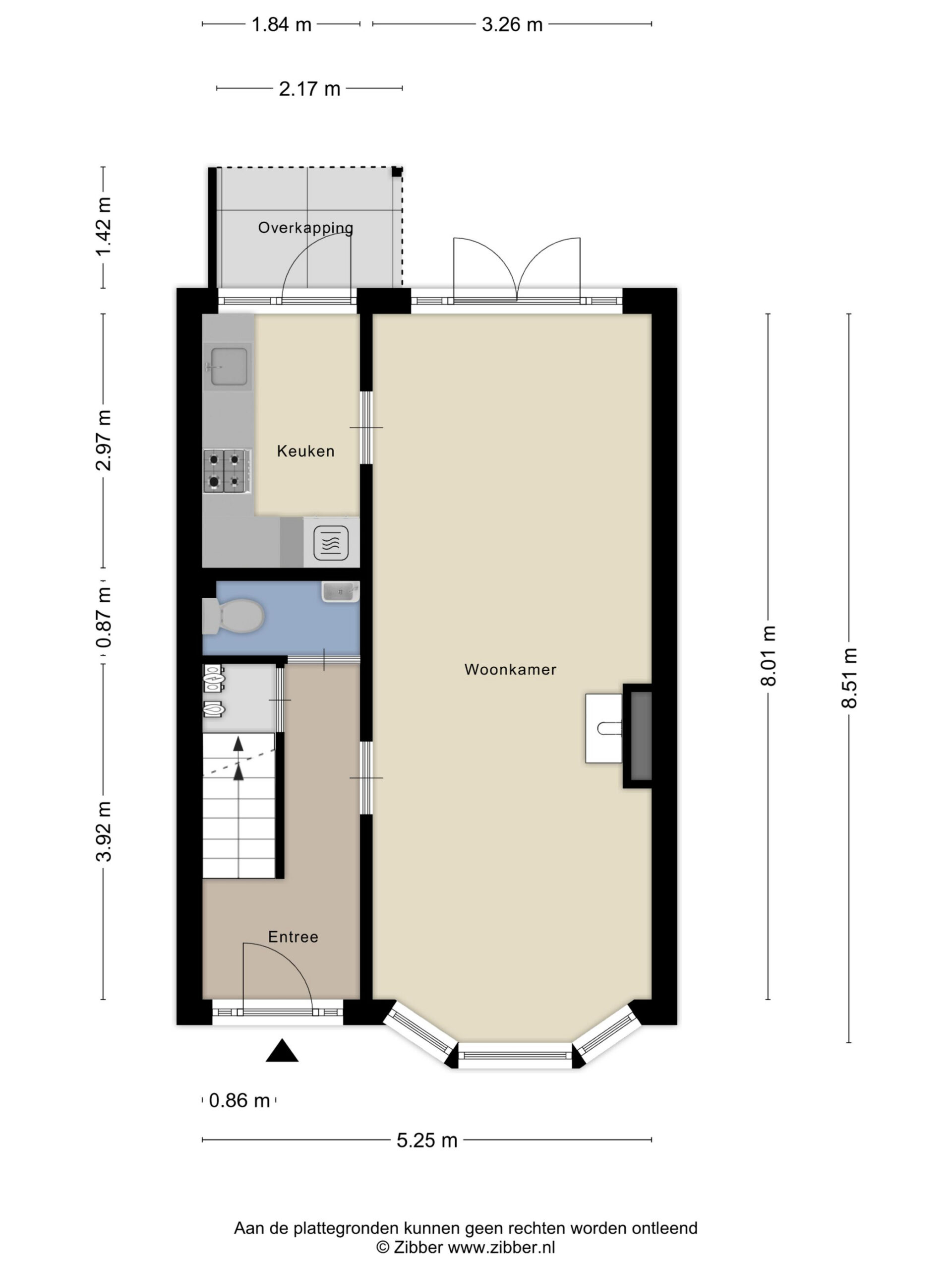
Kelder: Vanuit de hal te bereiken provisiekelder.
Begane grond: authentieke entree met glas-in-loodwerk, hal met meterkast, trapopgang naar de 1e verdieping, toegang tot de kelder en toilet voorzien van fonteintje. Sfeervolle, keurig afgewerkte woonkamer, met aan de voorzijde een zithoek met erker, een houtkachel en aan de achterzijde de eethoek met openslaande deuren naar de achtertuin. Dichte keuken in L-opstelling, voorzien van 4-pits gaskookplaat, afzuigkap, combi-oven, koelkast, vaatwasser en tuindeur.
1e Verdieping: ruime overloop. Twee keurig afgewerkte slaapkamers met houten vloeren en vaste kast(en), ter grootte van circa 10 m² en 14 m². Fraaie badkamer met toegang tot het balkon aan de achterzijde, voorzien van douche, wastafelmeubel en handdoekenradiator.
2e Verdieping: ruime overloop/annex wasruimte, voorzien van cv-opstelplaats en aansluiting voor de wasapparatuur. Nette 3e slaapkamer ter grootte van circa 10 m², met dakkapel en bergruimte achter de knieschotten.
Fraai aangelegde achtertuin, welke voor het grootste gedeelte is bestraat, met tegen de achtergevel een terras, houten berging en achterom. Parkeren is mogelijk op de openbare parkeervoorzieningen in de straat.
Kortom: op zoek naar een tussenwoning boordevol karakter nabij de Zutphense binnenstad? Kom snel kijken bij Slindewaterstraat 69!
