Nette hoekwoning op rustige locatie aan de rand van “De Hoven”. Deze leuke eengezinswoning gelegen aan Sonsvelthof 9 biedt het ideale onderkomen voor een (groot) gezin en beschikt o.a. over een ruime uitgebouwde woonkamer, woonkeuken aan de voorzijde, vijf (slaap-)kamers verdeeld over de 1e- en 2e verdieping, ruime badkamer, zonnige achtertuin met terras, overkapping en houten berging en een voortuin met parkeerruimte voor twee personenauto’s op eigen terrein! Ook is de woning goed geïsoleerd en voorzien van energielabel A! Het woonoppervlak is 139 m², de inhoud 491 m³ en het perceel heeft een grootte van 274 m².
De woning is gelegen in een rustige “nieuwbouw” buurt aan de rand van de Zutphense wijk De Hoven. De Hoven ligt ten opzichte van de rest van de stad aan de overzijde van rivier de IJssel wat de wijk een dorps karakter geeft. Door de ligging ben je dan ook binnen enkele ogenblikken in het mooie buitengebied waar talloze wandel- en fietsroutes te vinden zijn. Daarnaast is de Zutphense binnenstad niet ver weg, je hoeft slechts de Oude IJsselbrug over! Meer weten over De Hoven en haar omgeving? Informeer bij ons op kantoor!
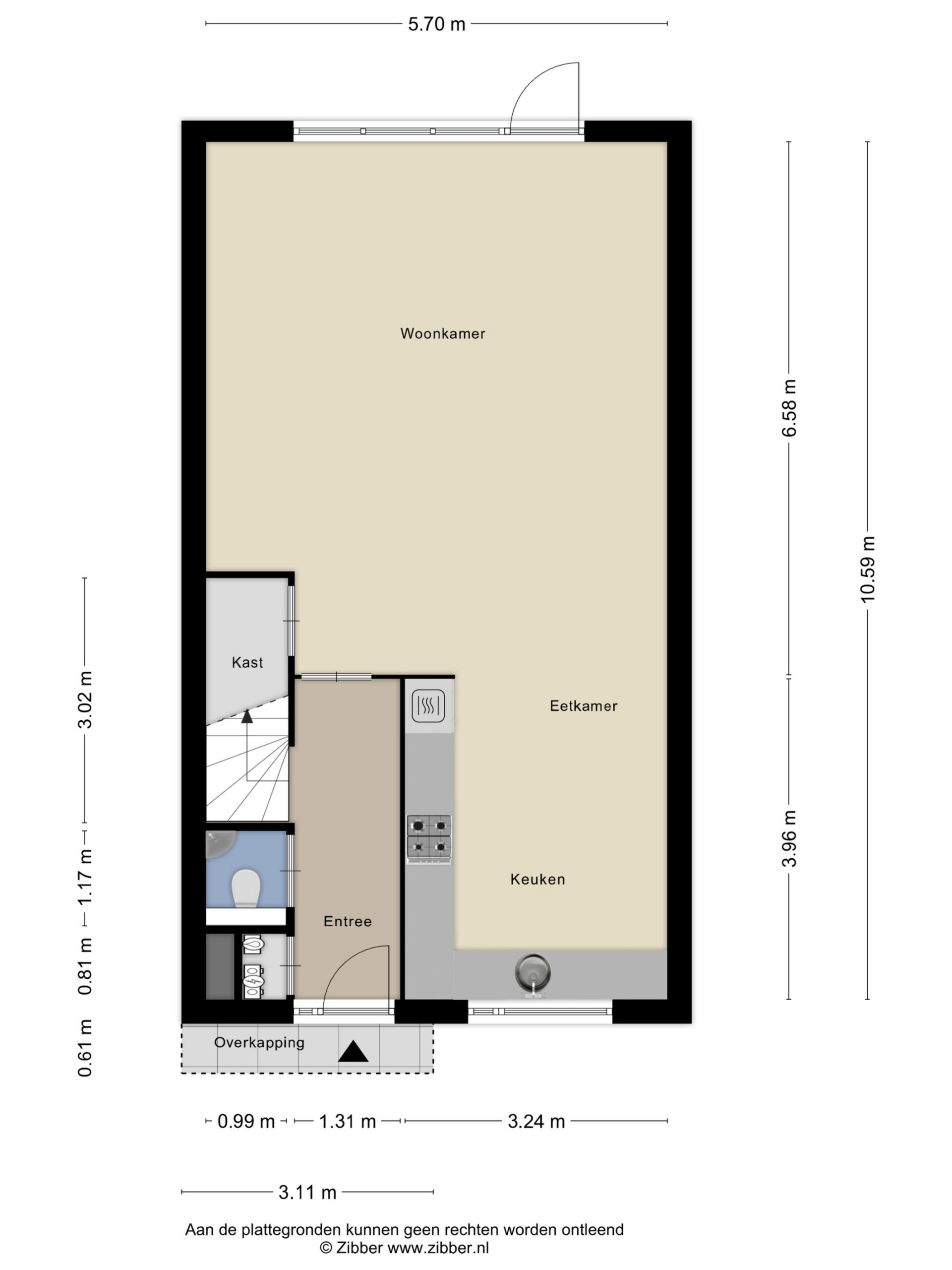
Begane grond voorzien van vloerverwarming: entree, hal met meterkast, trapopgang naar de 1e verdieping en toilet voorzien van wandcloset en fonteintje. Riante tuingerichte woonkamer met fijne lichtinval door de vele ramen, voorzien van plavuizenvloer en provisiekast onder de trap. Woonkeuken aan de voorzijde voorzien van inductiekookplaat, afzuigkap, combi-oven, koelkast en vaatwasser.
1e Verdieping: overloop. Drie (slaap-)kamers ter grootte van circa 6 m², 10,5 m² en 15 m², allen voorzien van laminaatvloer. De kleine kamer is op dit moment in gebruik als kastenkamer. Ruime badkamer met vloerverwarming voorzien van inloopdouche, dubbele wastafel en wandcloset.
2e Verdieping: overloop met cv-opstelplaats en wasmachine-/drogeraansluiting. Twee (slaap-)kamers ter grootte van circa 5,5 m² en 16,5 m². De grote kamer beschikt over een vaste kastenwand. De kleine kamer is in gebruik als kantoor/werkkamer.
Fraai aangelegde achtertuin op het zuidwesten met terras aan de achtergevel voorzien van elektrisch zonnescherm met nieuw doek, sierbestrating, vijver, berging en sfeervolle houten overkapping met aangebouwde bar. In deze berging is een gezellige bar gemaakt. De tuin is achterom te bereiken via de voorzijde en het achterpad. Voortuin met parkeerruimte voor twee personenauto’s op eigen terrein.
kortom: fijne hoekwoning op rustige locatie aan de rand van De Hoven!
