Dit goed onderhouden appartement aan Stationsplein 119 is de perfecte keuze voor wie wil genieten van de levendigheid en sfeer van de binnenstad. Het appartement biedt onder andere een ruime woonkamer met balkon, een aparte eetkamer, twee slaapkamers, een dichte keuken, een bijkeuken/berging met toegang tot de douche en een tweede balkon. Daarnaast is er een apart gastentoilet en een berging in de onderbouw van het complex. Het woonoppervlak bedraagt 81 m² en de inhoud is 276 m³.
De woning is gelegen aan de rand van de oude binnenstad van Zutphen op korte afstand van alle denkbare voorzieningen met het station op loopafstand. Het oude centrum kenmerkt zich door haar prachtige gebouwen uit de Hanze Tijd, wat het echt uniek maakt. Daarnaast worden er ook veel terugkomende evenementen georganiseerd waardoor er altijd wat te beleven is. Vanaf de woning kun je ook snel de rust opzoeken aan de oevers van rivier de IJssel!
Begane grond: centrale hal met toegang tot de bergingen in de onderbouw, trapopgang naar de woonverdieping en brievenbussen.
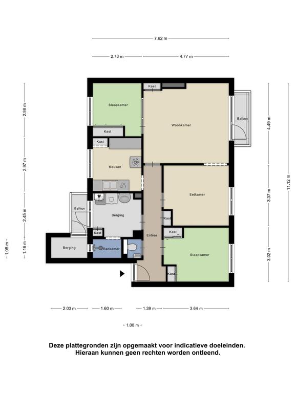
Woonverdieping (bovenetage): entree, hal met meterkast en gastentoilet met fonteintje. De woonkamer is netjes afgewerkt en voorzien van een pvc-vloer, een vaste kast en biedt toegang tot het zonnige balkon aan de stadzijde. Via de woonkamer is de aparte eetkamer bereikbaar. De woon- en eetkamer bieden allebei toegang tot de gang die leidt naar de dichte keuken, welke is voorzien van een 4-pits gaskookplaat en een afzuigkap. De twee slaapkamers zijn respectievelijk circa 7 m² en 9,5 m² groot en beschikken beide over een vaste kast. De bijkeuken/berging biedt ruimte voor de cv-opstelling, een wastafel, een vaste kast en de wasmachine-aansluiting. Vanuit deze ruimte is ook de douche en het balkon aan de stationzijde bereikbaar. Op het balkon is ook nog een berging, waar je eventueel de wasmachine of droger kunt plaatsen.
De kosten aan de VvE bedragen maandelijks € 189,–.
Kortom: keurig 4-kamer appartement op unieke locatie in het stadcentrum van Zutphen!
