Nette hoekwoning met garage op rustige plek in Warnsveld! Deze eengezinswoning aan ’t Spiker 33 biedt veel (buiten)ruimte en is o.a. voorzien van een ruime uitgebouwde woonkamer met serre, dichte keuken met tuindeur, vier slaapkamers verdeeld over de 1e en 2e verdieping, badkamer met 2e toilet en een riante tuin met garage, carport en oprit. Daarnaast is de woning goed geïsoleerd en voorzien van 10 zonnepanelen. Het woonoppervlak is 111 m², de inhoud 393 m³ en het perceel heeft een grootte van 413 m².
De woning is gelegen in het pittoreske dorpje Warnsveld op korte afstand van de dorpskern, waar je terecht kunt voor de dagelijkse boodschappen. Daarnaast ben je binnen enkele ogenblikken in het stadscentrum van de nabijgelegen stad Zutphen waar alle denkbare voorzieningen aanwezig zijn. Verder staat Warnsveld o.a. bekend om haar bosrijke buitengebied met prachtige wandel- en fietsroutes!
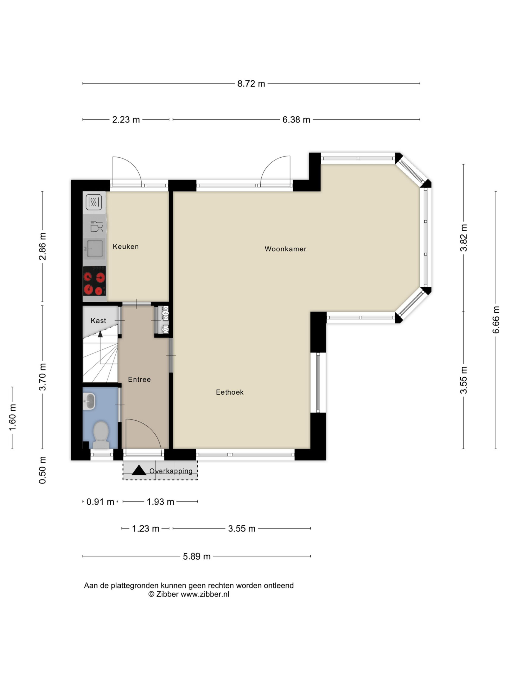
Begane grond: overdekte entree, hal met meterkast, trapkast, trapopgang naar de 1e verdieping en toilet voorzien van fonteintje. Ruime, uitgebouwde doorzonwoonkamer met gezellige zithoek in de serre, aparte eethoek en deur naar de achtertuin. Dichte keuken tevens met tuindeur, voorzien van inductiekookplaat, afzuigkap, combi-oven, koelkast, vaatwasser en plintboiler.
1e Verdieping: overloop. Drie slaapkamers ter grootte van circa 6,5 m², 9,5 m² en 13,5 m², allen voorzien van laminaatvloer. Badkamer voorzien van wandcloset, douche en wastafel.
2e Verdieping: overloop met toegang tot de berging met verwarmingsopstelling en wasmachine-aansluiting. Vierde slaapkamer ter grootte van circa 13,5 m², met dakkapel en vaste kast.
Riante zij-/achtertuin met terras tegen de achtergevel, gazon, meerdere borders en ruime stenen garage met carport voor één personenauto op eigen terrein. Voortuin met sierbeplanting en looppad naar de entree.
Kortom: op zoek naar een hoekwoning met veel ruimte in en om het huis? Kom snel kijken bij ’t Spiker 33 in Warnsveld!
