Nette eindwoning op rustige locatie in de Zuidwijken van Zutphen! Deze unieke eengezinswoning aan Weerdslag 28 is goed onderhouden en o.a. voorzien van riante tuingerichte woonkamer, aparte eethoek aan de voorzijde, half open keuken, bijkeuken, moderne badkamer, bergzolder, ruime inpandige garage en een nette achtertuin op het zuiden. Het woonoppervlak is 113 m², de inhoud 488 m³ en het perceel heeft een grootte van 178 m².
De woning is gelegen aan een rustige weg in de Zuidwijken van Zutphen. In de nabije omgeving zijn meerdere scholen te vinden en de wijk beschikt over haar eigen wijkwinkelcentrum, waardoor de dagelijkse boodschappen gemakkelijk in huis te halen zijn. Daarnaast ben je binnen circa 10 minuten fietsen middenin het oude centrum van Zutphen, met een ruim aanbod aan winkels , horeca, een theater, bioscoop en intercitytreinstation! Ook is de IJsseldijk/kade op wandelafstand waar je even kunt uitwaaien of kunt genieten van een prachtig uitzicht over de uiterwaarden.
Begane grond: entree, hal met toegang tot het toilet, de inpandige garage ter grootte van circa 16,5 m² en de bijkeuken met cv-opstelplaats en aansluiting voor de wasapparatuur. Ruime, tuingerichte woonkamer voorzien van visgraatparketvloer, schuifpui naar de achtertuin, houtkachel, trapopgang naar de 1e verdieping en aparte eethoek op de verhoging bij de keuken. Moderne half open keuken, voorzien van inductiekookplaat, afzuigkap, oven, koelkast en vaatwasser.
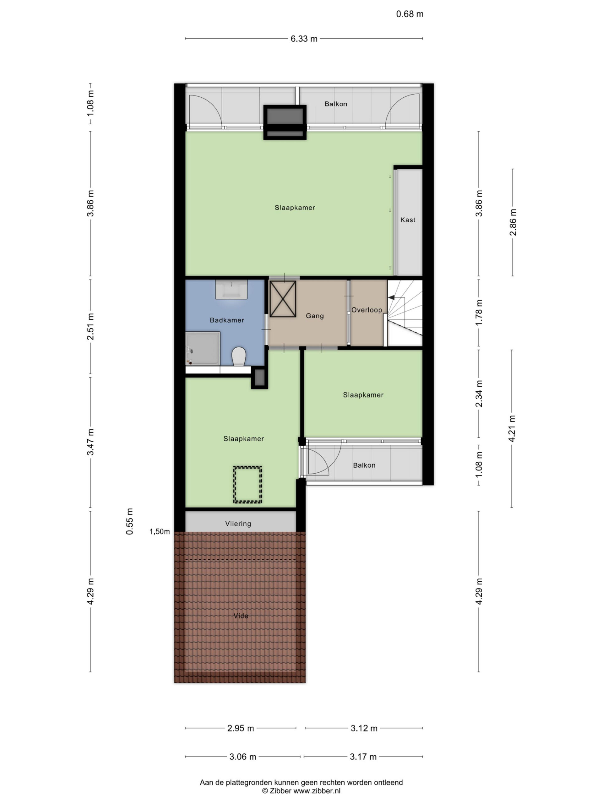
1e Verdieping: overloop met vlizotrap naar de bergzolder. Drie slaapkamers ter grootte van circa 7,5 m², 11 m² en 22 m², allen voorzien van laminaatvloeren en toegang tot balkon. De grote slaapkamer (voorheen 2 slaapkamers) beschikt over een vaste kastenwand. Moderne badkamer voorzien van wastafelmeubel, wandcloset, douche en designradiator.
Zolder: middels vlizotrap te bereiken grote bergzolder.
Zonnige achtertuin op het zuiden, met terras tegen de achtergevel voorzien van elektrisch zonnescherm, borders, houten schuurtje en achterom.
Parkeren is mogelijk op de openbare parkeervoorzieningen in de straat.
Kortom: unieke eindwoning met riante garage op rustige locatie in de Zuidwijken van Zutphen!
