Gemoderniseerde tussenwoning, gebouwd rond 1900. Deze knusse en sfeervolle tussenwoning aan Weg naar Laren 201 is uitermate geschikt voor starters of kleine huishoudens en beschikt o.a. over een strak afgewerkte woonkamer met schouw, half open keuken met toegang tot de achtertuin, twee slaapkamers, compacte badkamer, (provisie)kelder en een bestrate stadstuin met stenen berging. Het woonoppervlak is 63 m², de inhoud 256 m³ en het perceel heeft een grootte van 83 m².
De woning is gelegen in de wijk Noordveen, op korte afstand van het stadscentrum van Zutphen. Vanaf de woning kan je gemakkelijk de boodschappen te voet doen, met een supermarkt op steenworp afstand in de straat! Voor andere faciliteiten kan je terecht in het centrum, waar je o.a. een ruim aanbod aan detailhandel, horeca, een theater, bioscoop en treinstation treft.
Kelder: vanuit de eetkamer, middels kelderluik te bereiken (provisie)kelder.
Begane grond: entree met meterkast. Keurig afwerkte woonkamer voorzien van schouw, trapkast en laminaatvloer, met zithoek aan de voorzijde en eethoek bij de keuken aan de achterzijde. Half open keuken met tuindeur, voorzien van 4-pits gaskookplaat, afzuigkap, oven, koelkast, vaatwasser en wasmachine. Toilet voorzien van wastafel en (extra) douche.
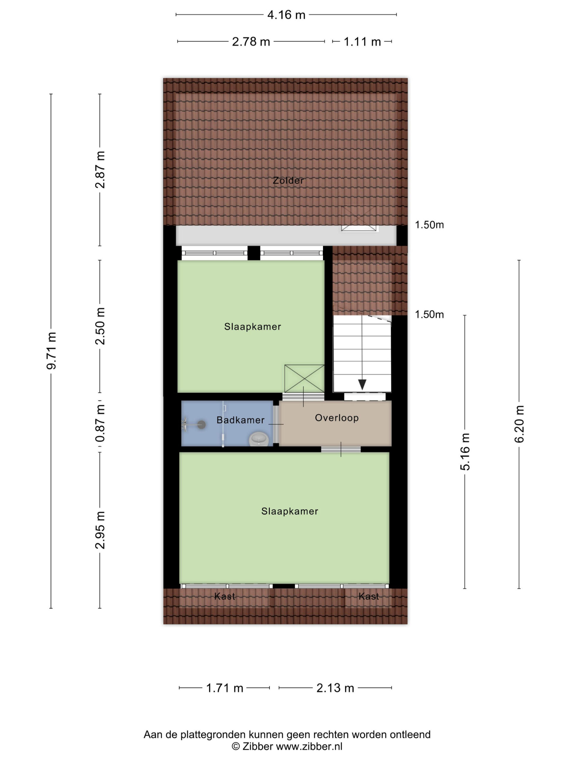
1e Verdieping: overloop. Twee nette slaapkamers ter grootte van circa 7 m² en 10 m², beide voorzien van dakkapel. Compacte badkamer met wastafel en douche.
Stadstuin op het noordwesten, voorzien van stenen berging. Parkeren is mogelijk in de straat op de openbare parkeervoorzieningen.
Kortom: op zoek naar een compacte woning boordevol sfeer? Kom snel kijken bij Weg naar Laren 201!
Er is een bouwkundige keuring aanwezig.
